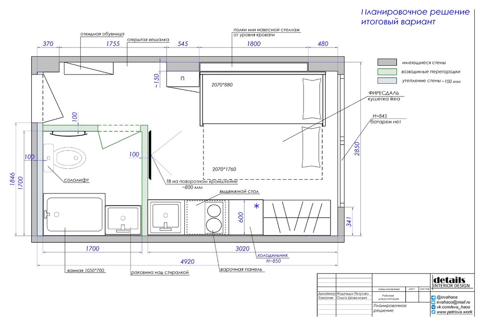
Дизайн квартиры студии 14 м2
Год реализации: 2019
12 фотографий
12 фотографий

Дизайн проект таунхауса (3 этажа с чердаком)
Дизайн интерьера двухуровневой квартиры
Дизайн двухкомнатной квартиры 65 м2 в скандинавском стиле
Дизайн однокомнатной квартиры "Из однушки в двушку"
Дизайн интерьера трехкомнатной квартиры 115 м2 (Санкт-Петербург) прихожая
Дизайн интерьера трехкомнатной квартиры 115 м2 (Санкт-Петербург) гостевой туалет