Девичьи радости
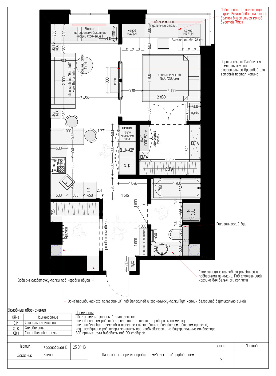
Чем должна отличаться квартира для молодой девушки? . Конечно же, наличием пространства для фантазии, творчества и и большой гардеробной. . . Планировочное решение квартиры полностью адаптировано для ее хозяйки.В уютной прихожей хозяйку квартиры встречает элегантная консоль.А одежда и обувь спрятаны в большой гардеробной, скрытой за зеркальными дверьми.Из холла мы можем попасть в ванную комнату.Кухня совмещена с гостиной. Яркие цветовые акценты сразу настраивают на уютный лад.Центр гостиной- биокамин. Он оформлен классическим белым порталом и вставками из глазурованной плитки. Это отсылает нас к аутентичным изразцам. Приоконная зона с мягкой лежанкой имеет место для хранения книг.Компактное пространство гостиной прекрасно подходит для уютного вечера у камина, для посиделок с друзьями и для творческой медитации. . Жалюзийные складные двери в просторную гардеробную в спальне, создают ощущение безмятежных прогулок по Европе или теплого утра, которое начинается с кофе на балконе где-нибудь в Барселоне или Париже, что безусловно по душе обладательнице этого интерьера, которая очень любит путешествовать. А невесомый полупрозрачный лес на фреске у изголовья кровати, как и в целом цвета в этом интерьере, подчёркивает легкость и нежность.
27 фотографий



























