Деревянный дом с гаражом
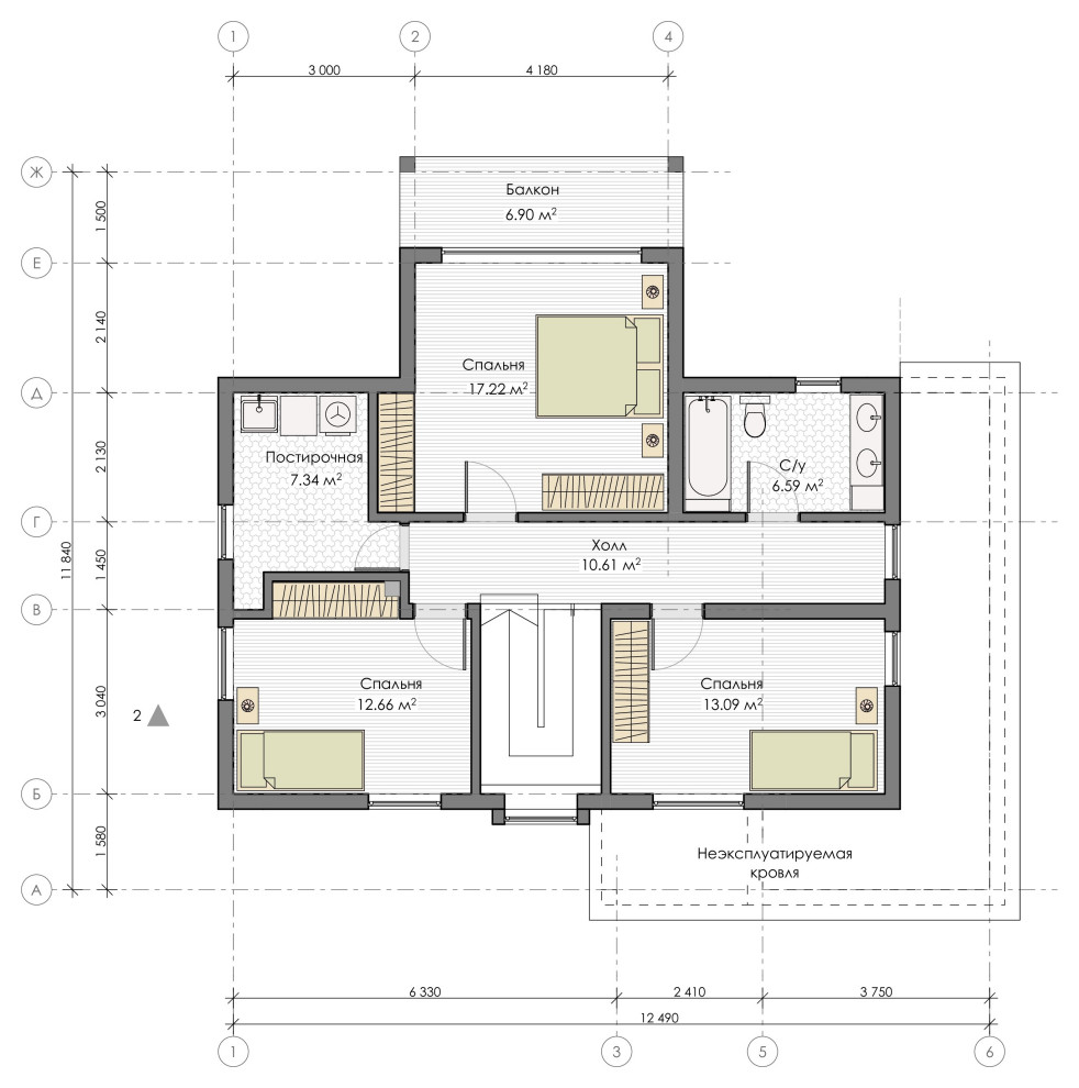
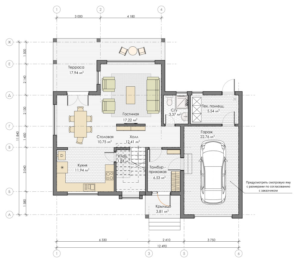
Деревянный дом тоже может быть современным. Простые лаконичные формы, обилие света и уютная терраса, большой гараж и просторная гостиная с выходом в сад - все это уместилось в 135 м2 общей площади. А еще в этом доме есть 3 спальни со встроенными шкафами, ванная и даже отдельная постирочная с гладильной!
Год реализации: 2020
Стоимость проектирования: 135 000 ₽
г. Тверь
10 фотографий











