
Архитекторы
4.75
·
10 отзывов
Деревянный дом с гаражом
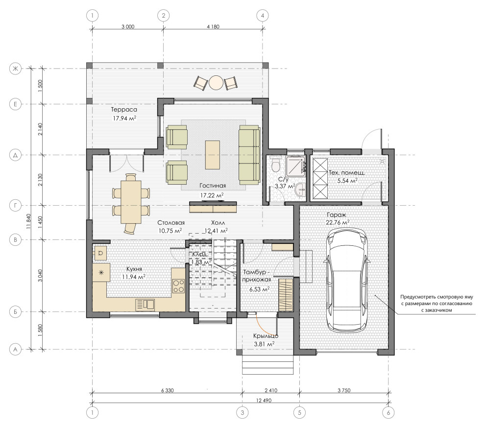
Деревянный дом тоже может быть современным. Простые лаконичные формы, обилие света и уютная терраса, большой гараж и просторная гостиная с выходом в сад - все это уместилось в 135 м2 общей площади. А еще в этом доме есть 3 спальни со встроенными шкафами, ванная и даже отдельная постирочная с гладильной!
Другие фотографии в проекте
Вопросы к фото 0
Задайте вопрос
Вам ответят эксперты. Пришлем уведомление, когда вам ответят




