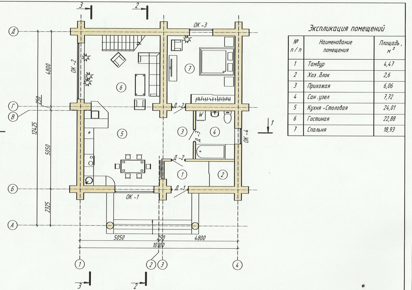
Деревянное домостроение
Коттедж, таёжная рубка, эксклюзив, 1 этаж - бревно, диаметр 450-500 мм., 2 этаж - каркас. Общая площадь 160 кв.м.
Год реализации: 2014
5 фотографий
Коттедж, таёжная рубка, эксклюзив, 1 этаж - бревно, диаметр 450-500 мм., 2 этаж - каркас. Общая площадь 160 кв.м.
5 фотографий
