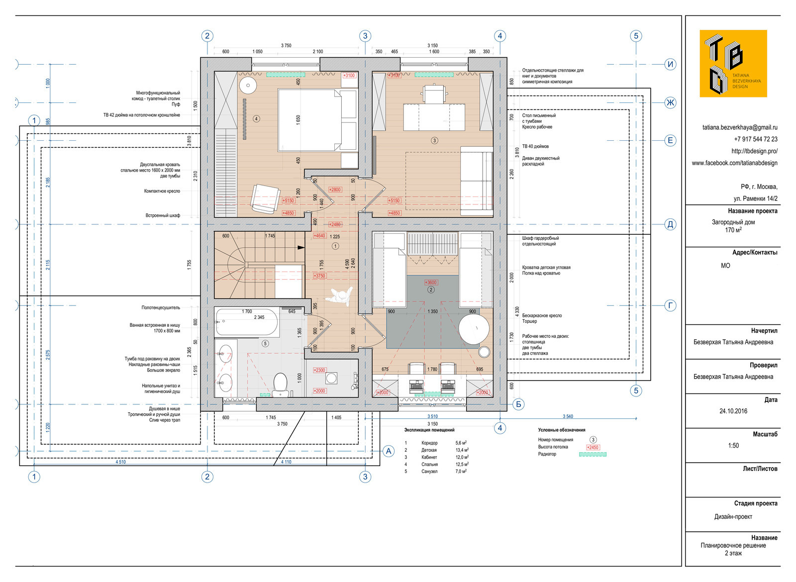
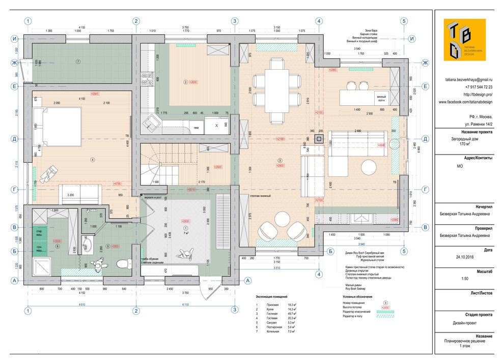
Дача под Дмитровом
Проект интерьеров загородного дома на Дмитровском шоссе для семьи с двумя детьми. Дом используется круглогодично.
Год реализации: 2017
г. Дмитров
41 фотография
Проект интерьеров загородного дома на Дмитровском шоссе для семьи с двумя детьми. Дом используется круглогодично.
41 фотография
