Д-1913 | Квартира для молодой пары в Екатеринбурге
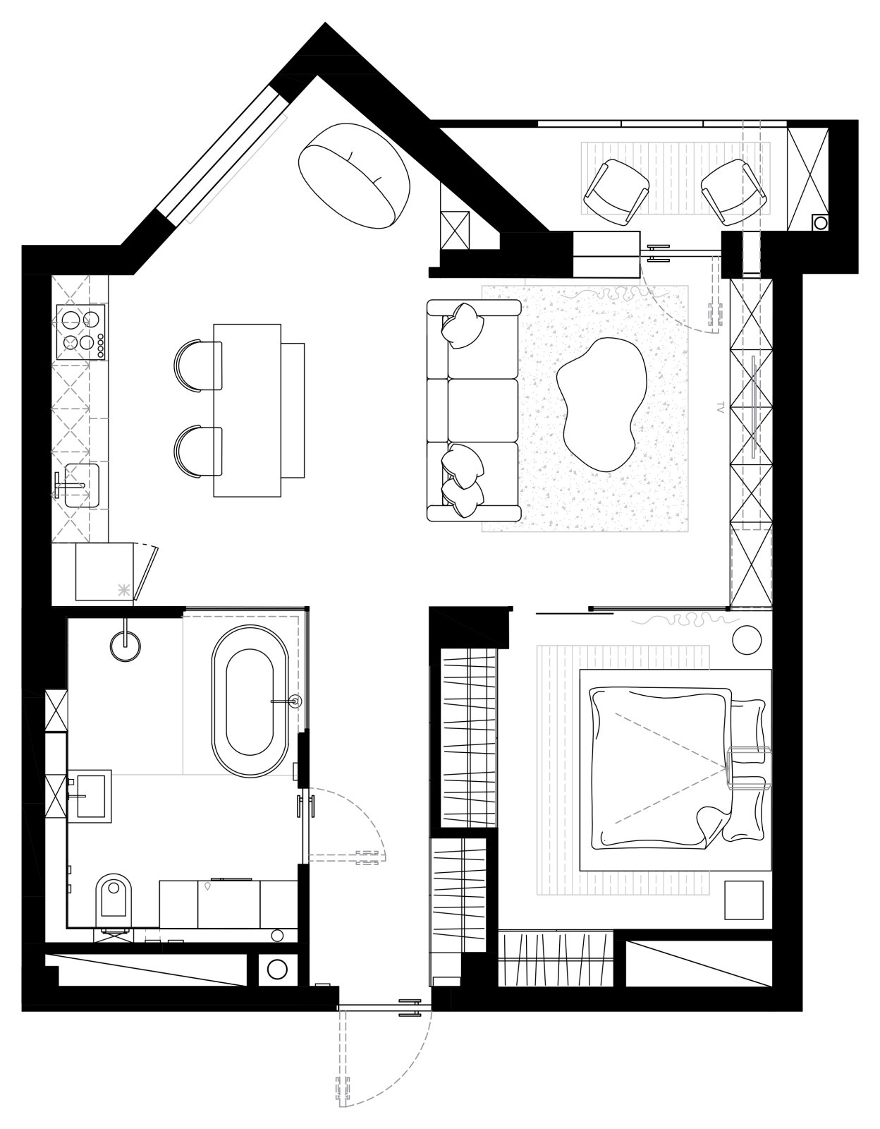
Общая информация: . . Локация: Россия, Екатеринбург . Площадь: 60 м.кв . Статус проекта: реализован . Год: 2021 . Тип недвижимости: новостройка . . Задачи проекта: . Заказчики этого проекта: молодая пара, которая много путешествует, увлекается современным искусством. У них уже есть дом за городом, и им нужна была квартира для временного проживания, когда они находятся в городе. Основным пожеланием заказчиков было создать функциональный интерьер, который бы их вдохновлял. . Визуально, с одной стороны им нравились камерные, фактурные интерьеры, с природными оттенками, с другой стороны стерильные, с белыми стенами, контрастными деталями. . Поэтому наша задача как архитекторов, была создать не только эргономичный интерьер, но и этически выверенный, где каждый ракурс гармоничен, без лишних деталей. . . Планировочное решение: . От застройщика нам досталась двухкомнатная квартира с двумя кладовками, большим коридором и маленькой ванной комнатой. . Заказчикам же хотелось больше воздуха, естественного света и ванную комнату, в которой есть и душевая и отдельно стоящая ванна. . Поскольку квартира располагается на втором этаже над нежилым помещением - это дало нам свободу в перепланировке. . Квартиру мы разделили на три основные зоны: кухня-гостиная, изолированная спальня и большая ванная комната. А для того чтобы визуально расширить пространство, перегородки в спальню и ванную комнату сделали стеклянными. Но при этом сохранили возможность приватности в обеих зонах. . . Концептуальное решение: . Благодаря перепланировке, мы получили функциональный интерьер с естественным светом в каждой комнате. . В проекте мы использовали контраст материалов: брутальный бетон и теплое дерево, фактурная штукатурка и белая гладкая стена. А для того чтобы визуально расширить квартиру: пол и стены выполнили в едином тоне. Пол во всей квартире наливной, поэтому нет ни одного порожка и стыка. . Графичность интерьеру придают черные линии металлокаркаса и открытая проводка на потолке. . . Коридор: . Все системы хранения в квартире интегрированы в стены и незаметны. Так, например, деревянный блок, разделяющий коридор и спальню, на самом деле двухсторонний шкаф. В прихожей предусмотрено место под верхнюю одежду, обувь. А чтобы увеличить это пространство прихожей, слева от входа мы разместили панорамное зеркало. . . Спальня: . Спальня небольшая , но функциональная. В ней расположены довольно объемные системы хранения. Все фасады без ручек и открываются от нажатия. За счёт своей минималистичной формы, белые фасады шкафов ещё выполняют функцию экрана для проектора. . В спальне мы разместили большую кровать из массива ясеня, прикроватные тумбы: одна сделана из ствола дерева, а вторая выполнена из бетона. . В комнате нет верхнего освещения, только мягкий свет от бра. А для комфортного выбора одежды в шкафах предусмотрена подсветка, которая включается автоматически при открывании дверей. . . Кухня-гостиная: . Пространство кухни-гостиной разделено на 3 зоны: . . Первая зона- кухня. Вдоль стены мы расположили кухонный гарнитур. А для того чтобы создать симметрию в пространстве, фасад встроенного холодильника облицевали декоративной штукатуркой, как и выступ у окна. Таким образом у нас получилась ось симметрии от центра кухни до телевизора. Фасады кухонного гарнитура имеют деревянную фактуру, а фартук выполнен из керамогранита, идентичного тону декоративной штукатурке. . В обеденной зоне стоит стол из массива ясеня. При этом с одной стороны стола мы поставили удобные стулья со спинками, а с другой стороны деревянную скамейку, которую можно задвинуть под стол и убрать с прохода. Над столом висит светильник из переработанной бумаги, он позволяет создать камерную атмосферу в обеденной зоне. . . Вторая зона- гостиная, которая отделена от кухни диваном, выполненным на заказ. . У дивана расположен журнальный столик из бетона сделанный по нашим эскизам. Столешница имеет живописную форму и опирается на три цилиндра. . Напротив дивана расположена встроенная система хранения. За ней скрывается телевизор и система вентиляции, которая доставляет свежий воздух в кухню-гостиную и спальню. Фасады имеют механизм - гармошка, открываются по нажатию. . . Третья зона - это зона отдыха, где можно почитать книги или посмотреть в окно на парк, расположившись на мягком кресле. . . . Ванная: . Ванная комната, это пожалуй, самый главный объект внимания в этой квартире, поскольку часть стен выполнена из стекла. Безусловно, это довольно смелое решение и не каждый бы на такое согласился, но нам очень повезло с заказчиками, которые поддержали эту идею. На случай прихода гостей, установлены жалюзи, которые полностью закрывают стекло. . Заходя в ванную комнату, мы видим подвесную раковину с зеркалом, за которым есть небольшое хранение, для средств гигиены. . У окна расположена отдельностоящая ванна, выполненная из искусственного камня, лежа в которой можно наслаждаться закатом. Так же предусмотрена отдельная душевая, и т.к она довольно глубокая мы выполнили ее без каких либо ограждений. . В ванной комнате есть хоз. блок со стиральной и сушильной машинами. . . Освещение: . Самым необычным и привлекающим внимание является потолочная система освещения. Так как мы оставили открытые плиты перекрытия, необходимо было сделать наружную разводку. Сначала мы обозначили необходимые зоны освещения (прихожая, обеденная зона, гостиная). Затем все потолочные светильники объединили плавной линией, которая создает живописный рисунок на потолке. . . . . . . .
24 фотографии
























