Д-1912 | Квартира для юриста в Екатеринбурге
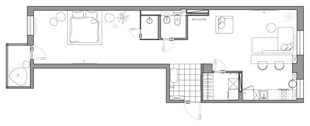
Квартира для юриста. . . Общая информация: . . Локация: Россия, Екатеринбург . Площадь: 62,5 м.кв . Статус проекта: реализован . Год: 2021 . Тип недвижимости: новостройка . . Задачи проекта: . Заказчик этого проекта мужчина - юрист. Ему нужна была квартира для постоянного проживания. Главным пожеланием было создать свободное и функциональное пространство без декора и лишних деталей. . Поэтому наша задача как архитекторов была создать аскетичное пространство, сформировав необходимые функциональные блоки внутри свободного планировочного решения. . . Планировочное решение: . Квартира площадью 62,5 кв.м., имеет вытянутую форму и окна на две стороны. Изначально, эта квартира была не жилым помещением - мастерской. Поэтому нам было необходимо разместить душ, туалет, в границах мокрой зоны, сформировать кухню-гостиную с барной стойкой, расположить закрытую гардеробную-прачечную, выделить спальную комнату и сделать зону отдыха на балконе. . . . Концептуальное решение: . Решая задачи, которые перед нами стояли, мы начали с формирования функциональных зон. Поскольку квартира не имела внутренних стен и перегородок, решено было сохранить свободную планировку, но при этом необходимо было обособить два помещения: санузел и гардеробную-прачечную. . Светопрозрачный блок санузла мы разместили в центре квартиры, тем самым разделили спальню и кухню-гостиную. . А гардеробную-прачечную расположили таким образом, чтобы обособить прихожую и сформировать кухню-нишу. . Материалы в этот проект были подобраны таким образом, чтобы подчеркнуть образ жизни заказчика: брутальная рельефная штукатурка, в сочетании с теплым благородным деревом, и все это на звонком белом фоне. . . . . Прихожая: . Входную зону мы обособили в небольшую нишу и выделили грязную зону керамогранитом. . А чтобы визуально вытянуть помещение и скрыть входную дверь, мы заменили дверное полотно с фурнитурой на черные, и выкрасили стену в этот же цвет. . Справа от двери разместили небольшое хранение, в котором спрятались счетчики, роутер и трансформаторы от освещения. При этом фасады шкафа не имеют ручек открываются от нажатия, а материал повторяет тон штукатурки. . Здесь есть удобный пуф и вешалка для уличной одежды, которая сделана по нашим эскизам. Она совмещает в себя и крючки, и штангу, на которой можно разместить плечики. . В прихожей также размещено зеркало в полной рост и, стоит отметить, что в этом проект больше нет зеркальных поверхностей, что было одним из пожеланий заказчика. . . . Кухня-гостиная: . Кухня небольшая,но функциональная. Рабочая зона состоит только из нижних секций, в которых расположена духовка совмещенная с микроволновкой и посудомоечная машина на 450 мм. Мы намеренно отказались от верхних шкафов т к, во-первых, заказчик мало готовит, а, во-вторых, хотелось визуально облегчить кухню. Справа находится встроенный холодильник и место хранение под продукты и посуду. . Также мы разместили дополнительное хранение в шкафу у барной стойки. При этом визуально это выглядит как большой шкаф, но на самом деле, в центре спрятан конструктивный элемент - колонна, а по бокам расположено хранение. . Вместо отдельно стоящего стола- высокая барная стойка из микробетона, которая находится в изголовье дивана и ориентирована на телевизор. . Зона гостиной сформирована мягким диваном, приставным креслом и маленьким столиком, в котором имеется хранение, для пледа или журналов. . Отдельно стоит сказать, что зона гостиной выделена еще и визуально - нависающей плитой с подсветкой. В которой расположено световое окно над креслом, его можно использовать как общий свет и как приглушенный для чтения. . Таким образом в кухне-гостиной сформировались различные сценарии освещения: встроенные точки на кухне, камни-подвесы над обеденным столом, светодиодная подсветка плиты и основной диммируемый свет от встроенной лампы. . . . Гардеробная - прачечная: . За дверью невидимкой, которая так же как и стена, покрыта декоративной штукатуркой, скрывается гардеробная-прачечная. . Все системы хранения выполнены из металла, но исходя из назначения, имеют свои особенности. . С одной стороны здесь расположено хранение для вещей, поэтому внизу для удобства выкатные ящики, а наверху до потолка сделаны штанги для вещей под плечики.Напротив располагается прачечная, где происходит цикл: стирка, сушка, хранение. . . . . . . Сан. узел: . В центре квартиры, напротив прихожей расположен блок санузла, который сформирован в виде светопрозрачного куба. Конструкцию которого мы сделали из металла, так как нам была необходима минимальная толщина стен, чтобы не выйти из границы мокрой зоны. . Зона туалета закрыта деревянными панелями МДФ, а душевая сделана полностью из стекла. Это триплекс из обычного матового стекла и рельефного стекла Эстриадо. Таким образом в душевую и санузел попадает естественный свет, но при этом не видно четкого силуэта человека. . Заходя в туалет, мы видим напольную раковину из искусственного камня и фасады встроенного шкафа. За ним скрывается хранение средств гигиены, водонагреватель и доступ к трубам по всей высоте. На полу и слева от раковины крупноформатный керамогранит, остальные стены в комнате- мдф под дерево. . В стеклянной душевой у нас поднят уровень пола, чтобы сохранить уклон стока воды в настенный трапик. Стены выполнены из двух видов керамогранита: крупноформатного под камень и рельефного под декоративную штукатурку в спальне. . В душевой и туалете на потолке, светопрозрачное полотно, которое равномерно заливает помещение светом. Вечером этот объем работает еще и как светильник. . . Спальня: . В спальной комнате расположена кровать с тумбами в виде камней по обеим сторонам. Они выполнены по нашим эскизам из бетона. При этом каждая форма, имеет верхнюю плоскость, на которую можно положить телефон или книгу. А в одной из тумб мы сделали скрытое хранение. . Напротив кровати расположен телевизор, и если в зоне гостиной он имеет привычную форму прямоугольника, то в спальне это круг. Мы сделали панель из мдф и покрасили в черный цвет, таким образом телевизор стал композиционным акцентом на белой стене. . . Балкон: . Изначально, балкон был не застекленным, холодным. Поэтому сначала мы утеплили пол, стены и потолок, застеклили все, смонтировали подогрев пола и только потом произвели чистовую отделку. . Здесь нет верхнего освещения, но есть аккуратный бра, на круглой основе из черного мдф, по принципу телевизора в спальне. Также мы установили столик, ножка которого выходит из стены. Столешница из натурального дерева, покрытая лаком в тон пола. А для того чтобы можно было расслабиться, здесь размещен мягкий пуф. .
18 фотографий



















