Communa 33
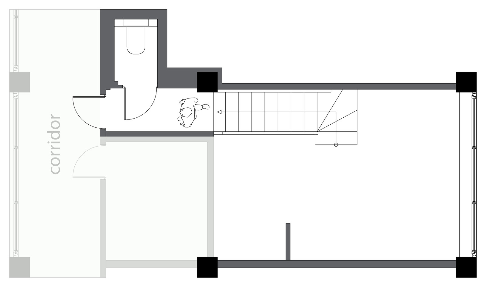
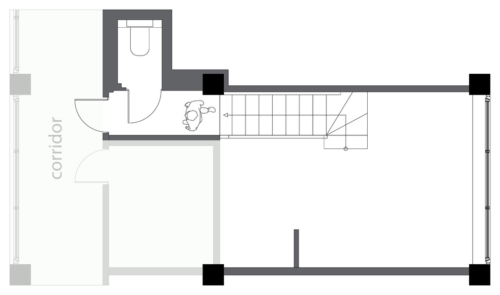
«Communa 33» - компактная многофункциональная квартира . Квартира находится в историческом центре Москвы, в знаменитом дом-комунне на Гоголевском бульваре. . Заказщик, мужчина живущий один и очень заинтересован и увлечен архитекурой конструктивизма. Основная задача проекта, это спроектировать оптимальный интерьер, трансформировать пространство. Эта квартра должна стать местом со всеми удобствами которые будут удовлетворять потребности современного человека, при этом площадь жилого пространство всего 33 квадратных метра. . В квартире очень четкое зонирование, организованные блоки. Книжный стилаж, блок кухни, хозяйственый блок, блок хранения (под лестницей). . Книжный стелаж спроектирован вдоль всей стены в пространстве между кухонным блоком и окнами. Чтобы не закрыть часть окон, в структуре книжной полки на пересечении стены и окна сделано углублени. Таким образом, появилось место для подвешивания стульев для гостей. Опоры из нержавеющей стали встроены в структуру стелажа, чтобы выдерживать нагрузки, так как стены дома очень старые и могут не выдержать. . Блок кухни скрыт складными дверями. В блоке оптимально продуманы места хранения под все необходимые бытовые нужды: ящик для хранения овощей с вентиляциоными отверстиями, закрытй ящик для кухонных принадлежности, выдвижной стол и холодильник. . Рядом с кухней находится хозяйственный блок со стиральной машиной, ящиком ля хранения белья и принадлежностями для уборки. Так же в этом блоке есть шкаф, в котором скрыта выдвижная штора на рельсе. Она отделяет зону спальни и душевую от гостинной, давая ощущения уюта и приватности. . Используя знания промышленного дизайна, каждый элемент кухни был спроектирован индивидуально для этого проекта. . Через круглое окно в душевой открывается вид на город, что дает ощущение простора. Под лестницей, рядом с душевой, встроен раздвижной гардероб. . Основная часть прочей мебели используемая в интерьере, спроектирована дизайнерами 30-х годов.
43 фотографии












































