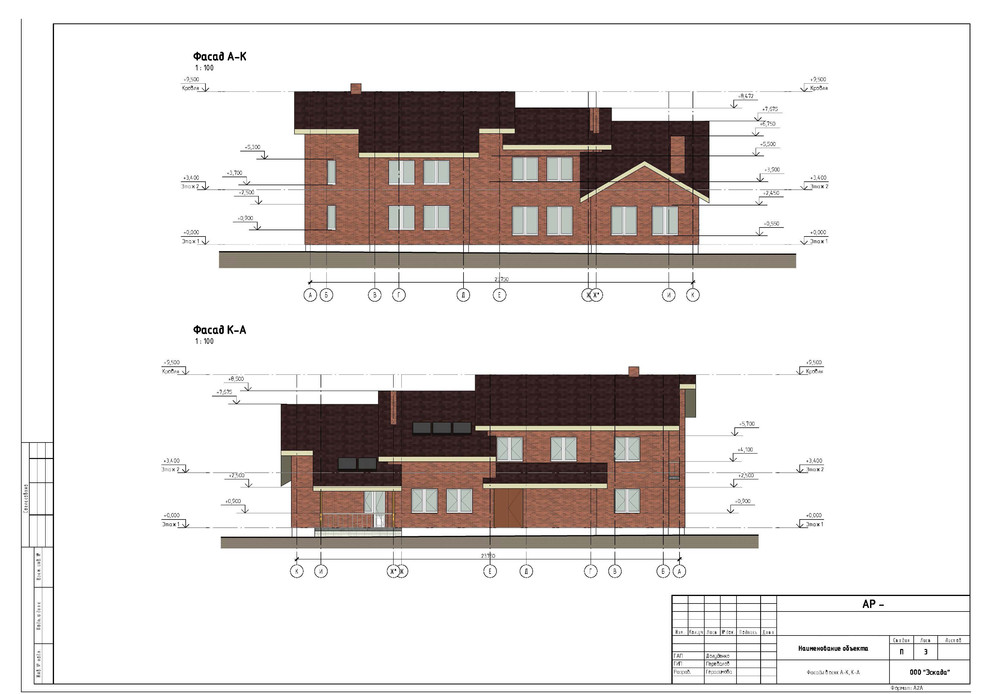
Профиль пользователяЧастный дом в Московской области. Объёмная и конструктивная проработка эскиза.Год реализации: 2017Стоимость проектирования: 525 000 ₽4 фотографии ПоделитьсяЧастный дом в Московской областиПоделитьсяСохранитьЧастный дом в Московской областиПоделитьсяСохранитьЧастный дом в Московской областиПоделитьсяСохранитьЧастный дом в Московской областиПоделитьсяСохранить