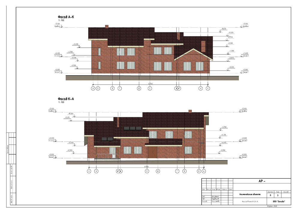
Другие фотографии в проекте Частный дом в Московской области. Объёмная и конструктивная проработка эскиза.
Сначала новые
Вам ответят эксперты. Пришлем уведомление, когда вам ответят
Москва, Переходный, проектирование зданий 3Д, рабочая документация АР КР
Валентин Бойко
Отопление; вентиляция; кондиционирование
0
отзывов
Рейтинг
Переходный
Москва