Частный дом на Истре
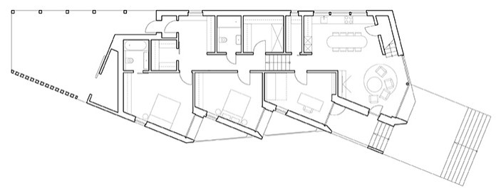
Прямоугольный участок на Истре вытянут с востока на запад. Для наилучшего вида и инсоляции мы развернули внешние стены комнат на 22 градуса, относительно внутренних. Во всех комнатах огромные окна в пол, выходящие на восток, из которых видно реку и не видно соседей. Под каждым окном подвесная прямоугольная клумба, чтобы трава подходила прямо к стеклу.
Год реализации: 2020
Стоимость проектирования: 5 250 000 ₽
22 фотографии






















