Частная квартира с лаконичным интерьером.
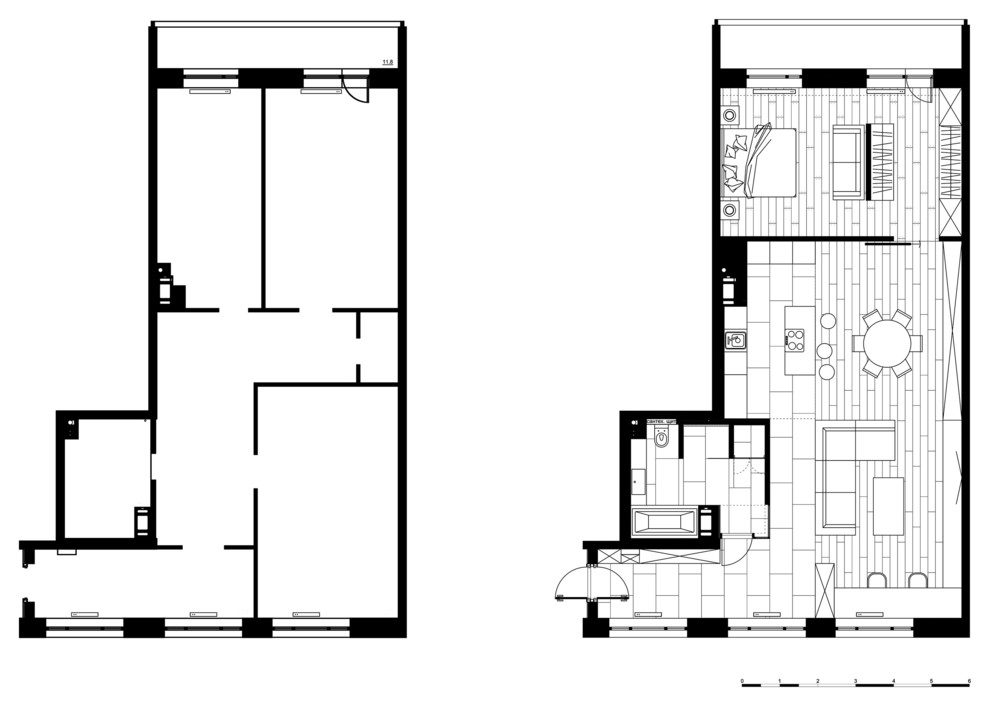
Дизайн интерьера квартиры для молодого человека. При перепланировке было принято решение объединить зоны кухни, гостиной и столовой, избавившись от темного и избыточно большого коридора в центре квартиры. . . Спальная была дополнена проходной гардеробной с зеркальными фасадами раздвижных дверец. Ванная комната расширена для увеличения полезной площади, новые перегородки выполнены частично светопрозрачными что-бы добавить воздуха и пропустить дневной свет вглубь помещения. В образованную стенами ванной комнаты и шахтой нишу была помещена кухня, отделенная от остального пространства островом. . . В отделке использованы три основных цвета: белый, оттенки серого и натуральное дерево. Ванная комната целиком облицована травертином. В гостиной и спальной две стены покрыты декоративной цементной штукатуркой, подчеркнутой линейными встроенными светильниками. Грубая поверхность штукатурки призвана уравновешивать белизну остальных стен и мебельных фасадов.
13 фотографий














