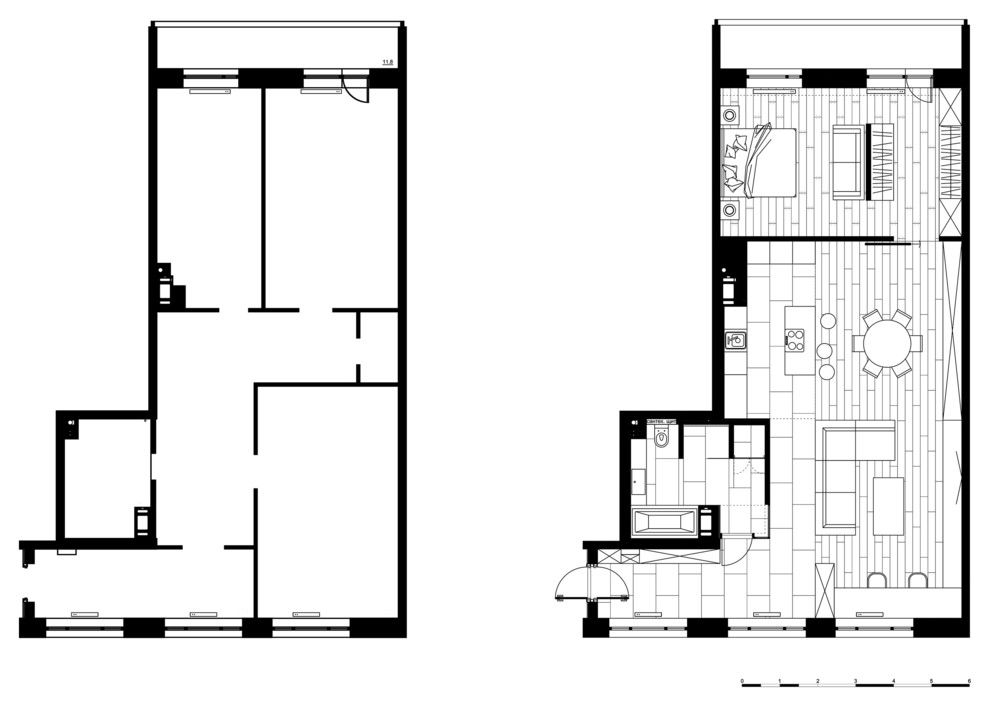
Частная квартира с лаконичным интерьером.

Другие фотографии в проекте Частная квартира с лаконичным интерьером.

Вопросы к фото 0

Задайте вопрос

Вам ответят эксперты. Пришлем уведомление, когда вам ответят

Artek, alvar aalto, boconcept, bulthaup, centrsvet, oikos, Контемпорари, Штукатурка, алвар аалто, белый, бетон, лофт, минимализм, раздвижные двери, светлый, скандинавский, стеклянные перегородки, травертин