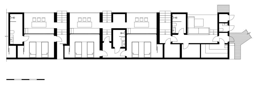
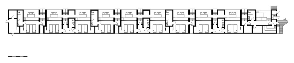
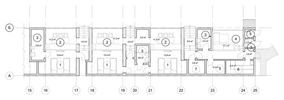
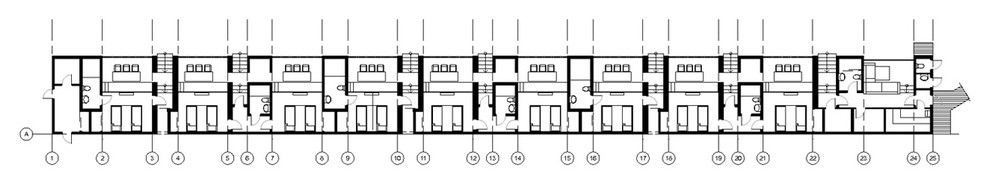
База отдыха Стародонье
Вода. Лес. Камень. Дерево. Постройки в этой идиллической картине находятся в полной гармонии с природой. Нейтрально-монументальная архитектура несет особый заряд. Спокойные каменные поверхности акцентируют внимание на природе, которая постоянно находится в движении: трепет листьев, течение воды, легкий ветерок.
Год реализации: 2016
41 фотография










































