База отдыха 2023

Другие фотографии в проекте База отдыха Стародонье

Вопросы к фото 0

Задайте вопрос

Вам ответят эксперты. Пришлем уведомление, когда вам ответят

Архитектура, Контемпорари, Проект планировки территории, база отдыха, гостиница, дизайн интерьера, дизайн планировки, ландшафт, лучшие базы отдыха, план, планировка, планировка помещения, планировка цена, планировка этажа, планировка этажа дома, планировки, планы, проект, проектирование, реновация планировки, ростовская область, схема планировки, чертеж

Архитектурная студия Chado

Архитектурная студия Chado

Дизайнеры интерьера

Смотреть профиль

24

отзыва

5

Рейтинг

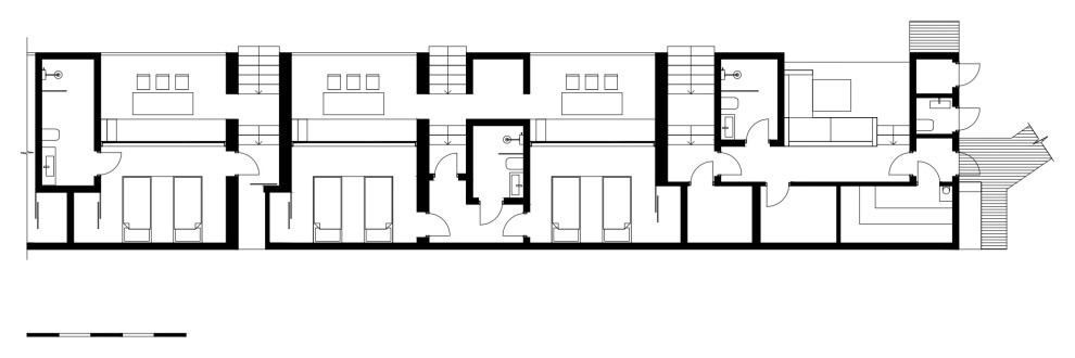
База отдыха Стародонье

Вода, лес, камень, дерево: одноэтажный спальный корпус в лесу построен в полной гармонии с природным ландшафтом. Спокойные каменные объемы не отвлекают внимания от природы, которая постоянно находится в движении: трепет листьев, течение воды, легкий ветерок. Огромные панорамные окна, вставленные прямо в каменные стены, открывают умиротворяющий вид на реку. Каждый номер имеет органичное продолжение — террасу со столиком и диванами, которая соединяет внутреннее и внешнее пространство. С местностью здание связывает основной строительный материал: камень с интересной фактурой добыт в карьере соседнего села.

Вопросы к фото 0