Backyard Art Studio July
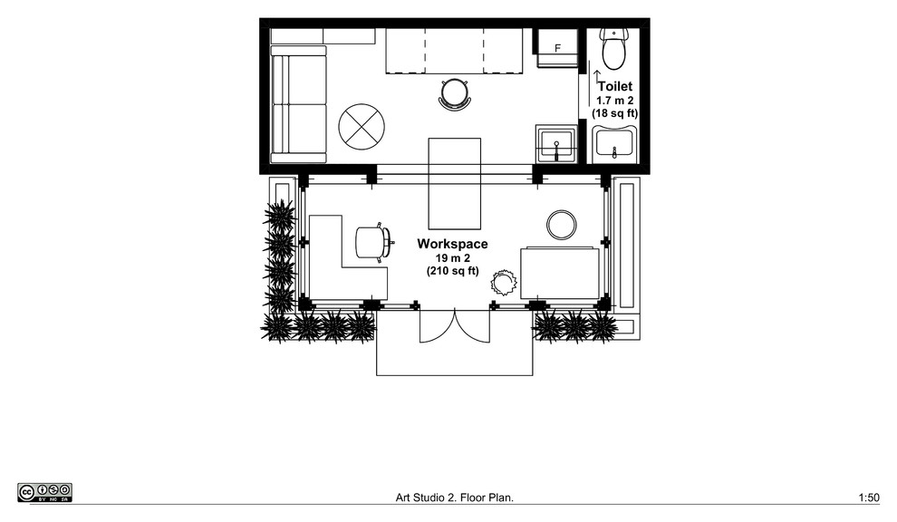
JULY . Backyard Art Studio . Basics: . bedrooms - 0 . baths - 1 half . floors - 1 . Square footage: . main floor - 220 Sq Ft . total heated - 220 Sq Ft . Dimensions: . width x depth - 19'- 8" x 14'-9" . height - 13'-2" . Ext. Wall Construction: 2 x 4 . Roof Framing: shed
Год реализации: 2019
13 фотографий














