Backyard Art Studio AUGUST
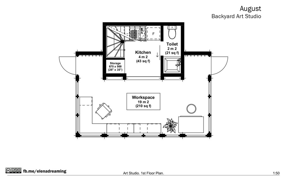
Basics: . bedrooms - 1 . baths - 1 half . floors - 2 . Square footage: . main floor - 294 Sq Ft . upper floor - 66 Sq Ft . total heated - 360 Sq Ft . Backyard Art Studio . Dimensions: . width x depth - 21'- 4" x 18'-1" . height - 18'-1" . Ext. Wall Construction: 2 x 4 . Roof Framing: shed, flat . Deck
Год реализации: 2019
20 фотографий





















