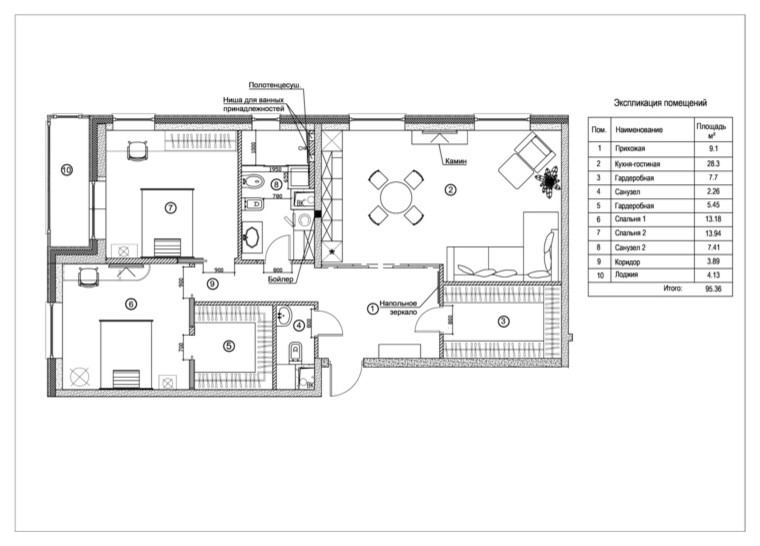
Атмосферный дизайн - проект квартиры 95 м2
Квартира получилась очень уютной в которой читается атмосфера загородного дома ,так как заказчик в качестве основного стиля выбрал шале и кантри , я не так часто работаю в таких стилях, чаще всего минималистские современные интерьеры, но был интересно создать атмосферу шале в квартире. Из пожеланий было: . - клинкерный кирпич - натуральное дерево . - керамогранит как основное напольное покрытие (почти везде лежит именно керамогранит ) . -жалюзи . -главный критерий чтобы материалы были практичны в уборке . -две спальни . -камин .
12 фотографий












