Атмосферный дизайн - проект квартиры 95 м2

Другие фотографии в проекте Атмосферный дизайн - проект квартиры 95 м2

Атмосферный дизайн - проект квартиры 95 м2
Атмосферный дизайн - проект квартиры 95 м2
Атмосферный дизайн - проект квартиры 95 м2

Вопросы к фото 0

Задайте вопрос

Вам ответят эксперты. Пришлем уведомление, когда вам ответят

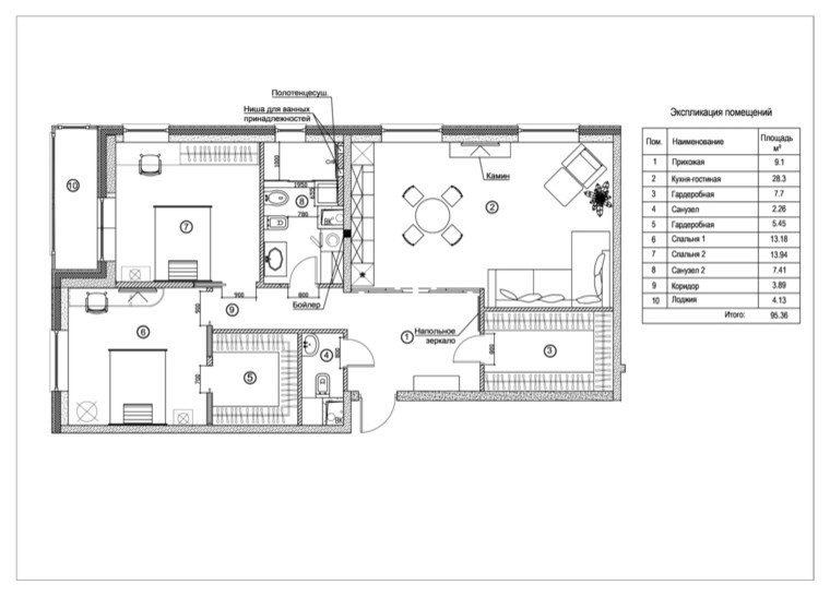
Москва, план перепланировки

Анастасия Заря

Дизайнеры интерьера

Смотреть профиль

0

отзывов

0

Рейтинг

Атмосферный дизайн - проект квартиры 95 м2

Квартира получилась очень уютной в которой читается атмосфера загородного дома ,так как заказчик в качестве основного стиля выбрал шале и кантри , я не так часто работаю в таких стилях, чаще всего минималистские современные интерьеры, но был интересно создать атмосферу шале в квартире. Из пожеланий было: . - клинкерный кирпич - натуральное дерево . - керамогранит как основное напольное покрытие (почти везде лежит именно керамогранит ) . -жалюзи . -главный критерий чтобы материалы были практичны в уборке . -две спальни . -камин .

Вопросы к фото 0