Атмосфера города
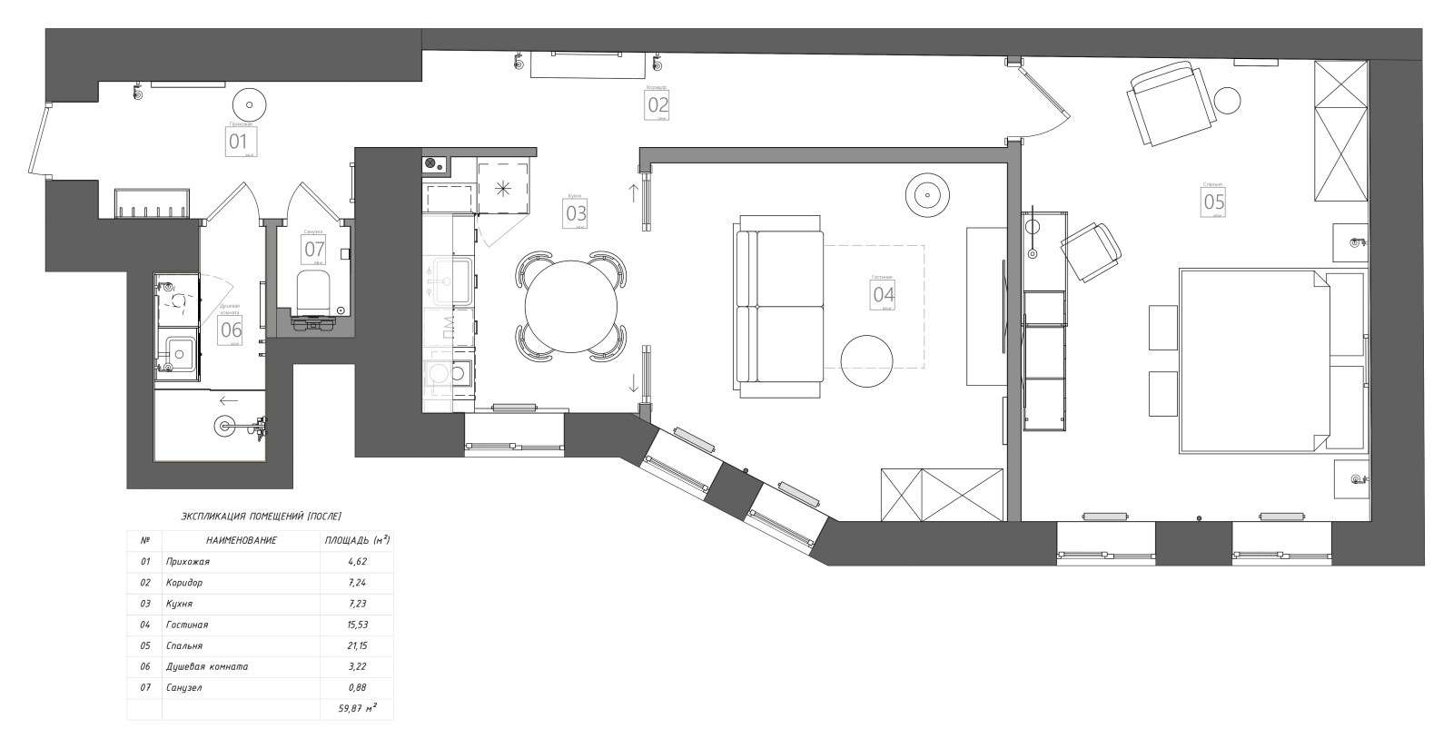
Квартира для посуточной аренды. . Объект находится в историческом центре Петербурга. Дом постройки середины 19 века, в двух шагах от Площади Искусств. Окна выходят на солнечную сторону и тихий двор. . Заказчики хотели интерьер преимущественно в серой цветовой гамме с небольшими акцентами. Должна была чувствоваться атмосфера Петербурга. Местоположение объекта и запрос клиентов продиктовали использование классических приемов в интерьере и в то же время хотелось привнести современные элементы, создать легкий микс. . Квартиру нужно было подготовить для комфортного пребывания 4 человек. Поэтому между небольшой кухней и гостиной создали стеклянную перегородку. В дневное время оба эти помещения объединяются. В вечернее - гостиная становится отдельной спальней. Перед раздвижными дверьми висят плотные шторы. В гостиной раскладной диван. . В спальне находится рабочее место. Стол объединен с комодом - изделие изготовлено по эскизам дизайнера.
16 фотографий
















