Arthouse
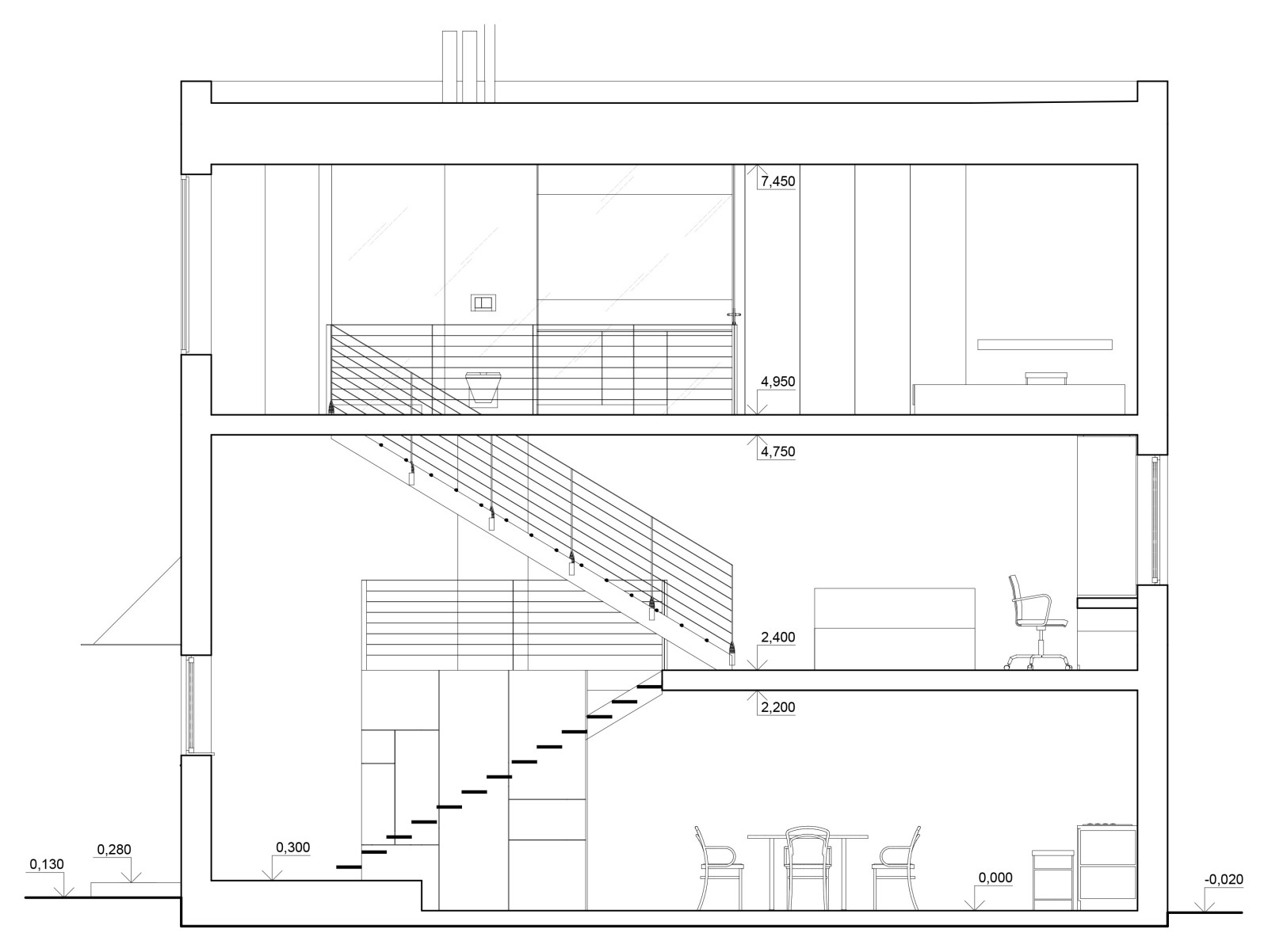
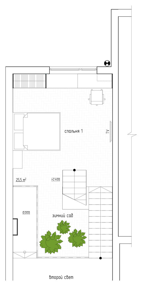
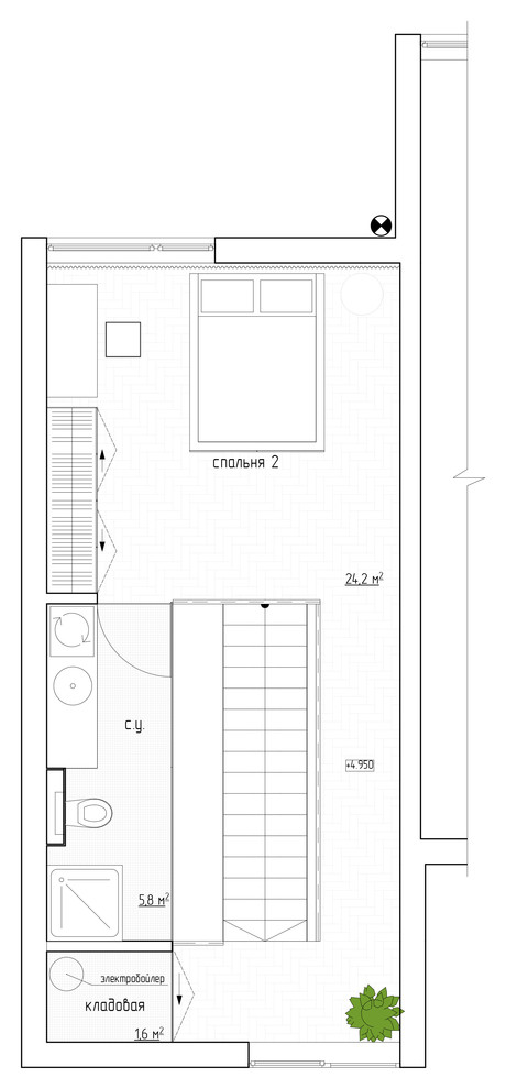
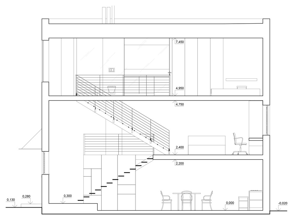
местоположение: г. харьков . функция: блокированные жилые дома . общая площадь: 285м2 (3х95м2) . статус: реализован (2014-2015) . авторы: Александр Поминчук, Марина Поминчук . фото: Иван Авдеенко . . Проект «Arthouse»был первым реализованным в нашей практике объектом данной типологии, относящейся к блокированному жилью. . Небольшие размеры участка и сложившаяся структура городской ткани определили его объемно-пространственное решение – компактные в пятне . застройки жилые блоки. Внутрення структура каждого блока представляет собой «этажерку» в общем пространстве, где каждый жизненный процесс . занимает свой уровень, но при этом все они связаны между собой открытой лестницей. При этом каждый из блоков имеет свой задний двор, . в который можно попасть через пространство кухни-столовой. Такая нетрадиционная схема жилого дома изначально служила ключом . к интерьеру каждого из блоков. В данной ситуации открытое пространство дома, пронизанное солнечным светом играло первостепенное . значение над цветом, фактурой и другими декоративными средствами. Но разрабатывая интерьер одного из блоков для его жизнерадостной, . энергичной владелицы, нам пришлось искать компромисс между стерильным пространством дома и его эмоциональной составляющей, . которая выражалась бы в ощущении домашнего уюта. В процессе тесной работы с Заказчиком мы нашли образ некого средиземноморского жилья, . который объединял в себе все требуемые качества – баланс между чистотой пространства и его эмоциональностью. .
25 фотографий
























