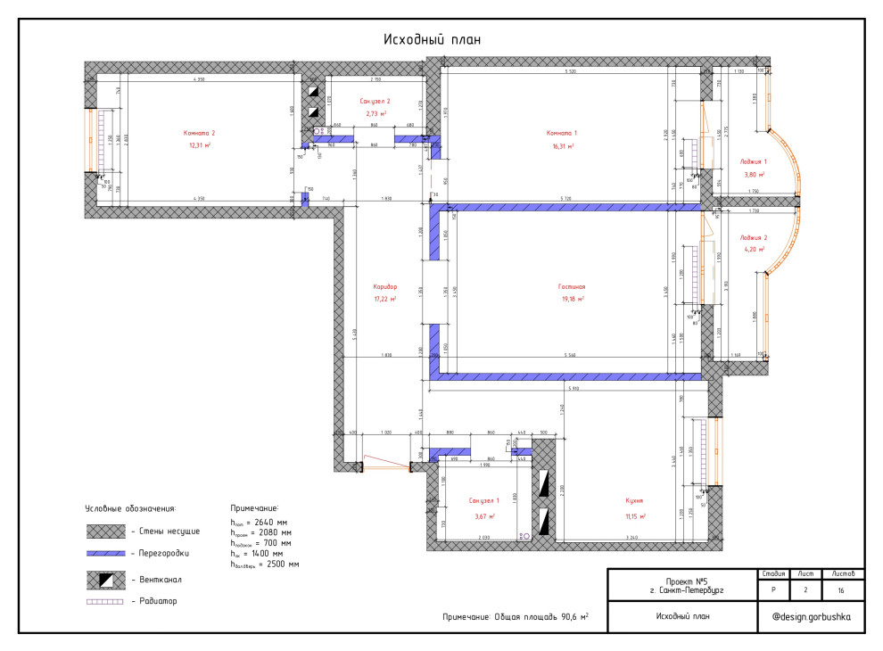
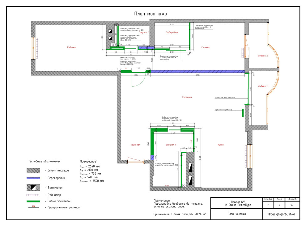
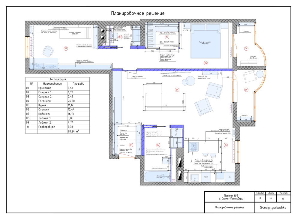
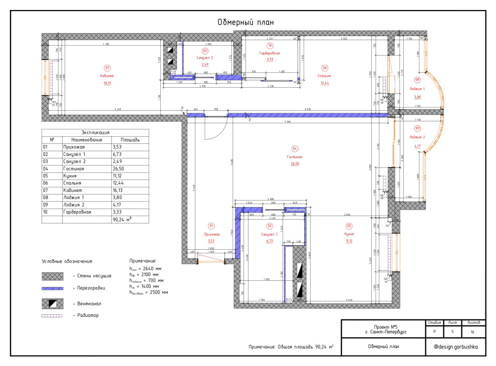
Альбом Дизайн-проекта трехкомнатной квартиры
Проект включает в себя рабочую документацию для строителей.
Год реализации: 2022
Стоимость проектирования: 135 000 ₽
г. Санкт-Петербург
28 фотографий
Проект включает в себя рабочую документацию для строителей.
28 фотографий
