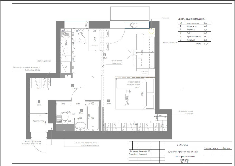
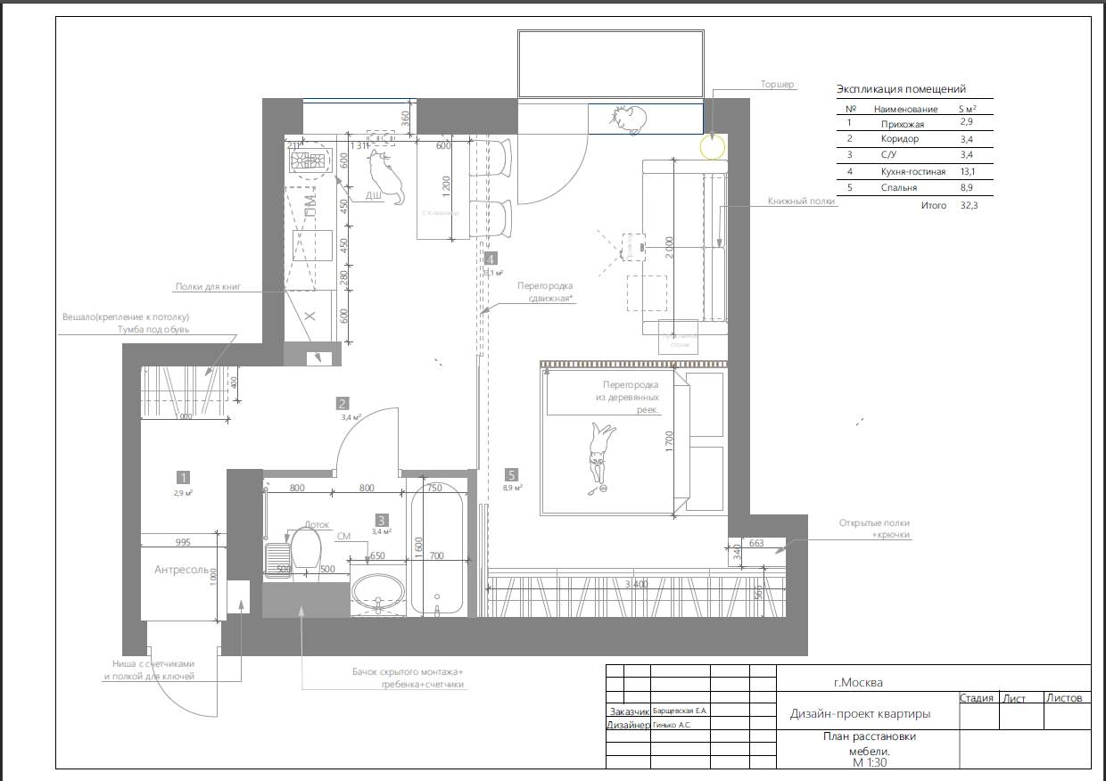
33м2 на Тимирязевской.
Дизайн-проект квартиры для молодой пары с кошкой. . Квартира находится в "хрущевке" 1969г. Что добавляет дополнительные сложности при ремонте и поиске планировочных решений. . В итоге, на 33м2, нам удалось сделать: спальную зону, кухню-гостиную, которые отдаляются друг от друга, шкаф-гардероб и полноценный санузел. . В оформление интерьера используются натуральные текстуры и цвета. . . Сейчас идёт процесс чистовой отделки.
Год реализации: 2018
Стоимость проектирования: 34 999 ₽
г. Москва, проезд Соломенной Сторожки, Северный административный округ
13 фотографий














