
Архитекторы
5
·
10 отзывов
33м2 на Тимирязевской.
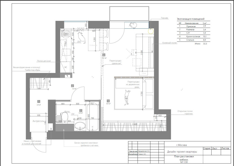
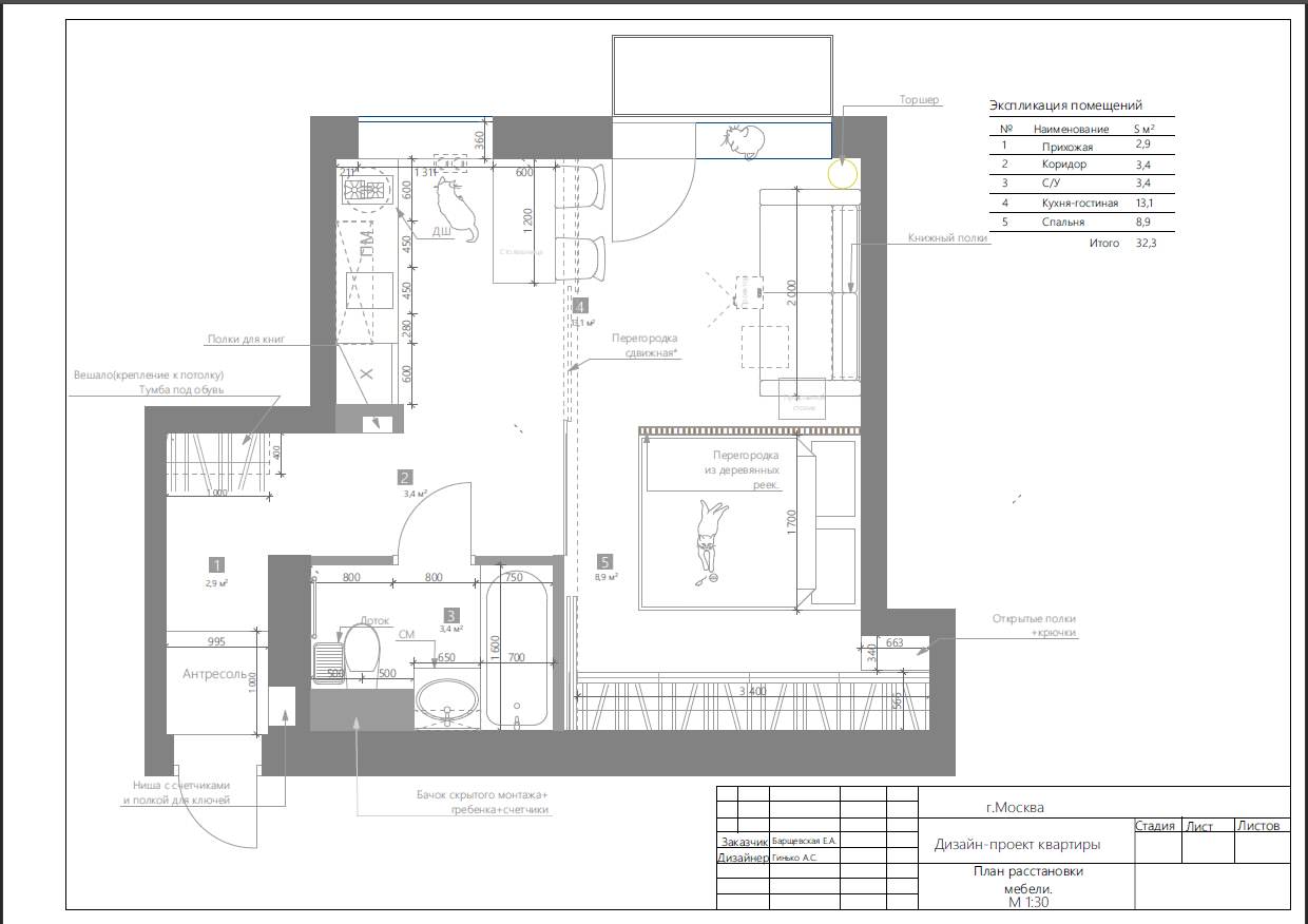
Основной задачей стало уместить всё что нужно для молодой пары с кошкой на 33м2, при этом сохранив "воздух". . Было принято решение объединить санузлы. Убрать перегородку между кухней и гостиной и вместо неё сделать подвижные двери, которые можно сдвигать и раздвигать, тем самым отделяя или наоборот соединяя жилое пространство с кухней. Двери выполнены в белом цвете и помимо основной функции, служат в качестве полотна для проектора. Между диваном и кроватью сделали перегородку из реек, что позволило зонировать пространство.
Другие фотографии в проекте
Вопросы к фото 0
Задайте вопрос
Вам ответят эксперты. Пришлем уведомление, когда вам ответят




