1 ЖК " Терраса Хаус" квартира 51 кв.м. г. Ростов-на-Дону
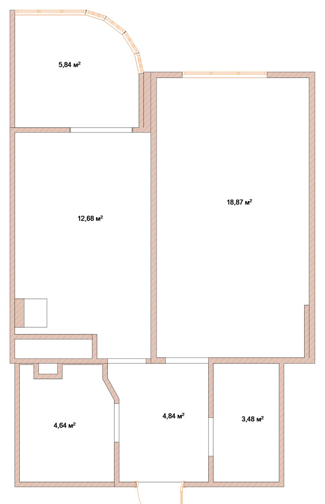
Квартира в современном жилом комплексе выполнена в классическом стиле с элементами прованса. Задача передо мной стояла сделать светлую и уютную квартиру, где будет место не только для жильцов, но и место приема гостей-это гостиная.Сделала перепланировку квартиры. Изменили расположения стен, в ванной комнате передвинули стену, уменьшили спальню тем самым создав зону гостиной и обеденной зоны, сделали встраиваемую мебель, чтобы не загромождать небольшое пространство квартиры. Светлые тона и много света сделали эту квартиру уютной и воздушной, куда с удовольствием хочется возвращаться после тяжелого трудового дня.
Год реализации: 2016
10 фотографий









