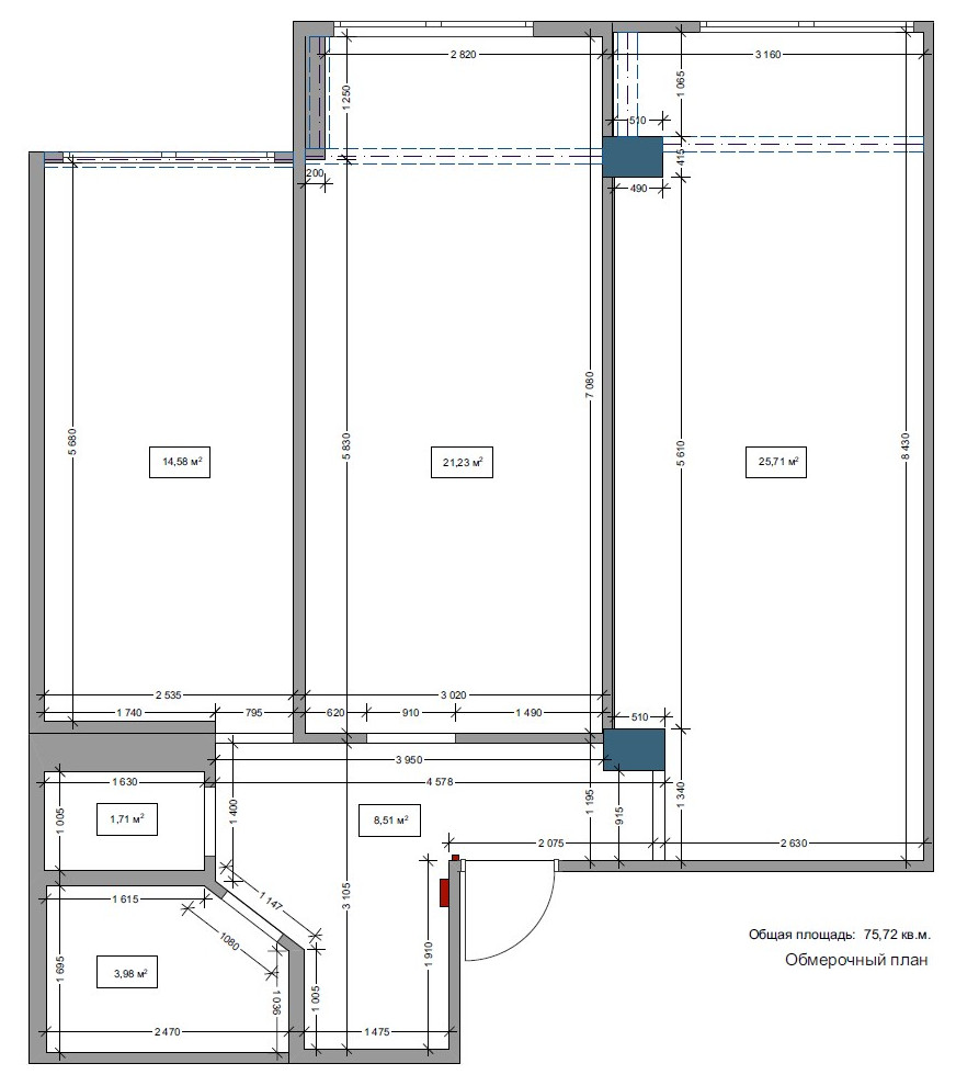
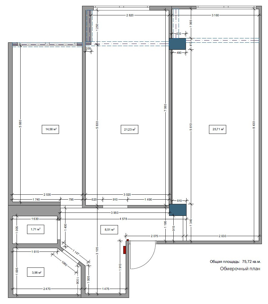
ЖК "Rich House" г. Краснодар 76 кв.м.
Многие боятся длинных вытянутых комнат, но в умелых руках это становится преимуществом в данной планировке. . При проектировании в одной из комнат у нас получилось два зонированных пространства - гостиная и кабинет с зоной для цветов. . Во второй комнате у нас вышло три полноценных пространства - вместительная гардеробная, большая спальня и импровизированная лоджия с зоной для отдыха и растений.
Год реализации: 2023
г. Краснодар, 113 Ярославская улица
37 фотографий






































