logo

04. Перепланировка 3-комнатной квартиры.

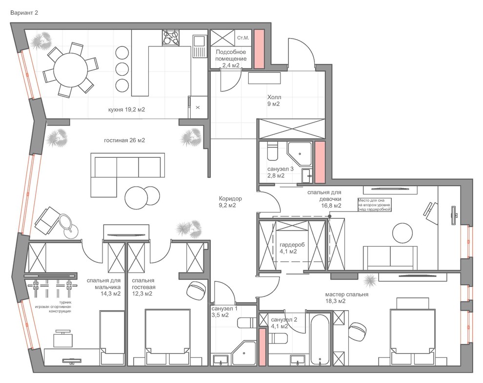
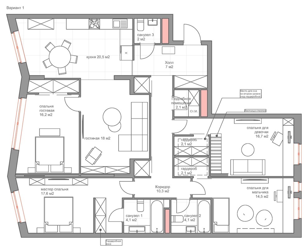
Перепланировка квартиры 120 м2.

Год реализации: 2019
Стоимость проектирования: 135 000
photo

3 фотографии

Квартира. 130 кв.м.
Квартира. 130 кв.м.
Квартира. 130 кв.м.
Квартира. 130 кв.м.
Квартира. 130 кв.м.
Квартира. 130 кв.м.
Фоновое изображение профиля Екатерина Щелокова
Фото профиля Екатерина Щелокова

Контакты

г. Москва