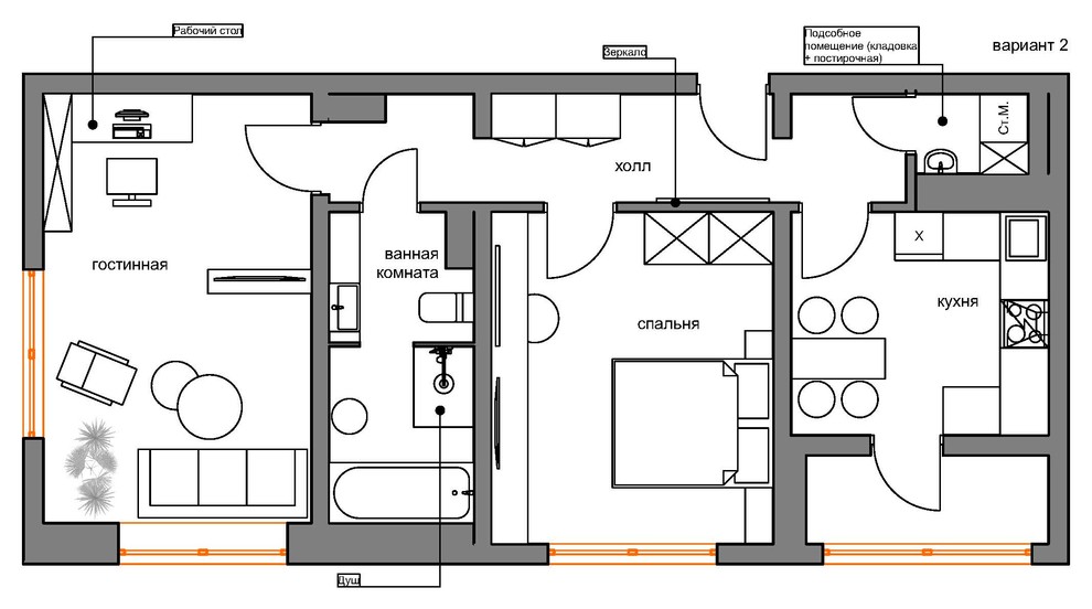
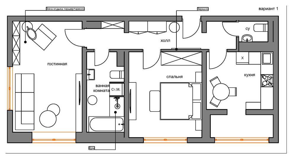
Профиль пользователя03. Перепланировка 2-комнатной квартиры.Перепланировка нестандартной 2‑комнатной квартиры.Год реализации: 2019г. Москва8 фотографийПоделитьсяСохранитьПерепланировка. Квартира, 2-х комнатная.ПоделитьсяСохранитьПерепланировка. Квартира, 2-х комнатная.ПоделитьсяСохранитьПерепланировка. Квартира, 2-х комнатная.ПоделитьсяСохранитьПерепланировка. Квартира, 2-х комнатная.ПоделитьсяСохранитьПерепланировка. Квартира, 2-х комнатная.ПоделитьсяСохранитьПерепланировка. Квартира, 2-х комнатная.ПоделитьсяСохранитьПерепланировка. Квартира, 2-х комнатная.ПоделитьсяСохранитьПерепланировка. Квартира, 2-х комнатная.ПоделитьсяСохранить