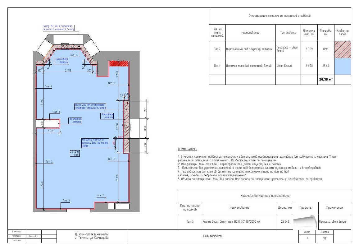
Профиль пользователя03 Чертежи (дизайн-проект детской комнаты г. Тюмень)Год реализации: 2023Стоимость проектирования: 34 999 ₽7 фотографийПоделитьсяСохранитьПлан отделки помещенияПоделитьсяСохранитьЧертежиПоделитьсяСохранитьЧертежиПоделитьсяСохранитьЧертежиПоделитьсяСохранитьЧертежиПоделитьсяСохранитьЧертежиПоделитьсяСохранитьЧертежиПоделитьсяСохранить