02 Технический проект квартиры
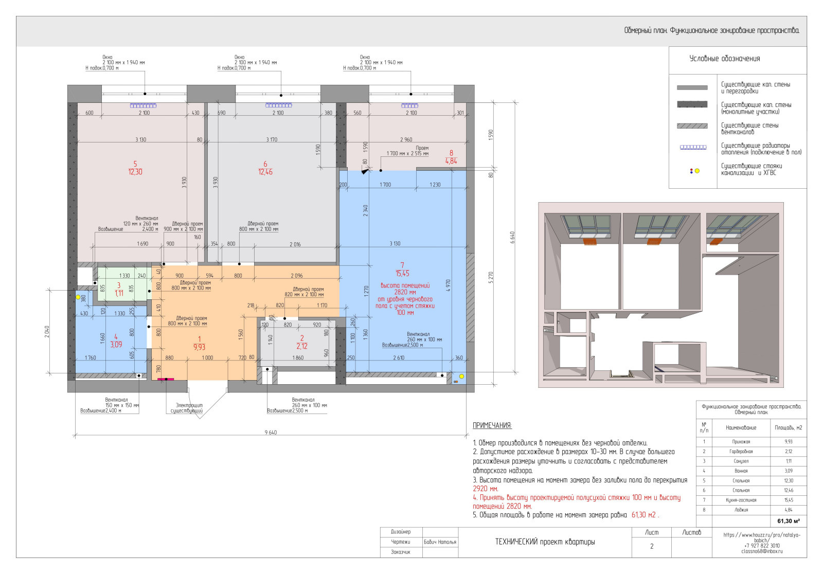
Если Вы не знаете с чего начать отделку Вашей новой квартиры, дома и все еще раздумываете над заказом полного дизайн- проекта, могу предложить услугу по разработке технического проекта включающего в себя разработку чертежей необходимых для того, что бы определиться со строительной бригадой и начать ремонт. . Алгоритм работы: . 1. Выезд на объект и замеры помещений. . 2. Составление обмерного плана (для определения общей площади). . 3. Разработка и утверждение планировки с расстановкой мебели и оборудования. . 4. На основе утвержденной планировки подготовка планов: . - освещения; . - освещения с привязкой к выключателям; . - расположения розеток, электровыводов и выключателей; . - плана розеток, электровыводов и выключателей с размерами; . - ведомости розеток и выключателей. . За более подробной информацией пишите- звоните- все объясню и расскажу.
14 фотографий














