#016 ОП_ Кафе в парке "Музеон"
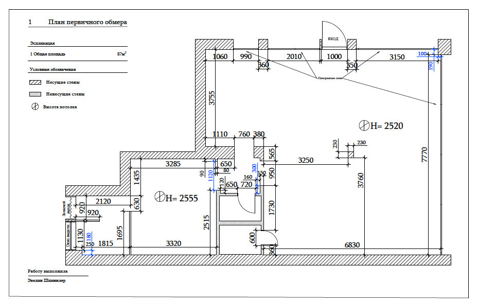
Дизайн кафе в одном известном парке Москвы на набережной был выполнен в кратчайшие сроки по просьбе Заказчика, так как предстоял процесс согласования с руководством парка. По завершению проекта, все вопросы были решены и согласованы. Проект реализован и можно его посмотреть на известной набережной в парке "Музеон", а также вы можете выбрать столик внутри кафе или расположиться на открытой террасе и насладиться свежим воздухом и пением птиц. . . Кафе относится к стритфуду и выполнено в эко-современном стиле. Одним важным плюсом заведения - это панорамные окна, которые придают особый шарм всему пространству. Окунуться в эту атмосферу вы можете посетив данное кафе. Переходите в ТГ, там вы найдете видео ролик про этот проект.
9 фотографий









