
Люцилия Тигрова
Ландшафтные дизайнеры
Отзывы о: Люцилия Тигрова 1
5
1 отзыв
Качество работы
5.0
Коммуникация
5.0
Стоимость
4.0
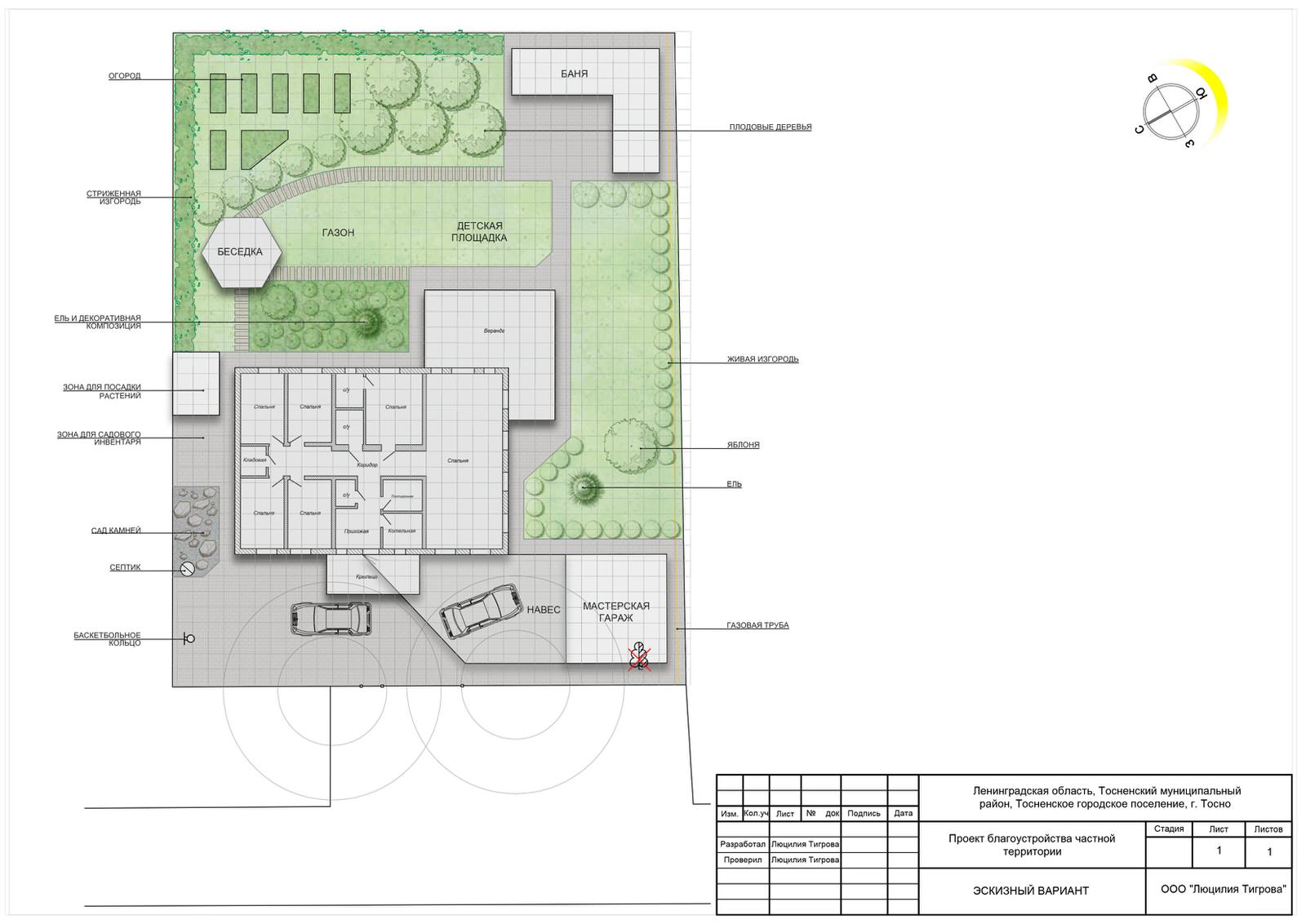
Нужно было быстро спроектировать пространство участка. Хотелось переехать сразу в красоту в этом году. 50 соток. Личный контакт это важно, но многое было обсуждено и решено дистанционно. Проект включал генеральное решение, выбор стиля, разбивку сада, дорожки, свет, скульптуру и прочие детали.
23/Февраль/2024
Об эксперте
Об опыте
Создаем ландшафтный дизайн комфортный и красивый учитывая интересы всех проживающих на нем заказчиков. Окутаем заботой. Поможем с подбором надежных подрядчиков, купить качественные материалы со скидкой.
Категории специализации
Ландшафтные дизайнеры, Проектирование и строительство
Ценовой сегмент: ₽₽
Услуги
Водный объект на заказ
Дизайн сада
Засухостойкие ландшафтные работы
Ландшафтное проектирование
Ландшафтный дизайн
Ландшафтный дизайн участка с бассейном
Посадка органического сада
Посадка плодовых деревьев
Проектирование участка
Садово-парковое и ландшафтное строительство
Альбомы идей 1





