
Дмитрий Туманов
Архитекторы
Отзывы о: Дмитрий Туманов 0
Нет отзывов
Об эксперте
Об опыте
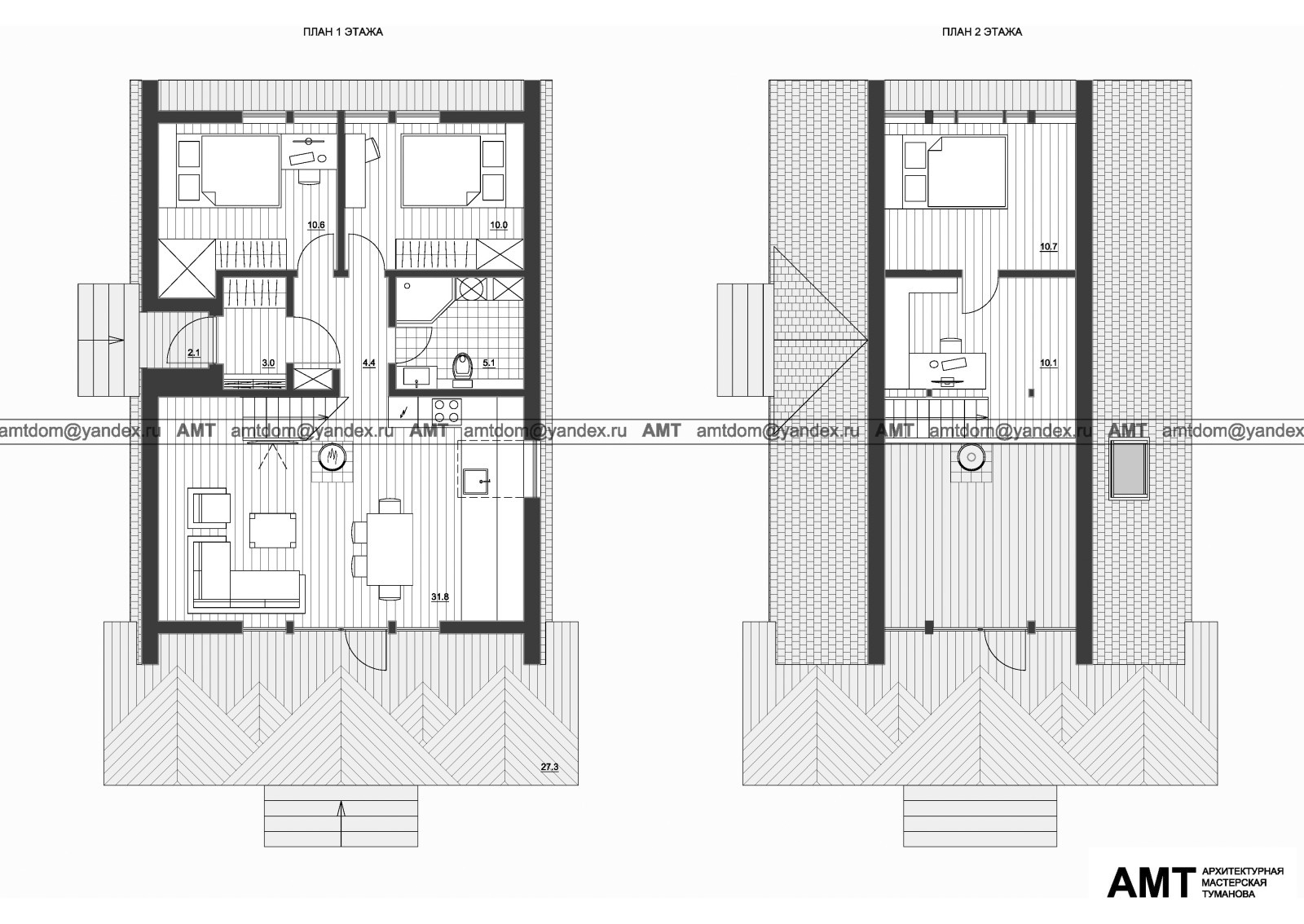
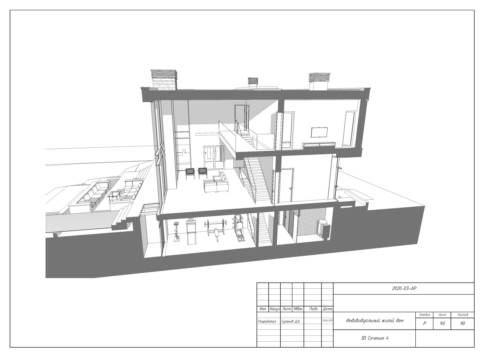
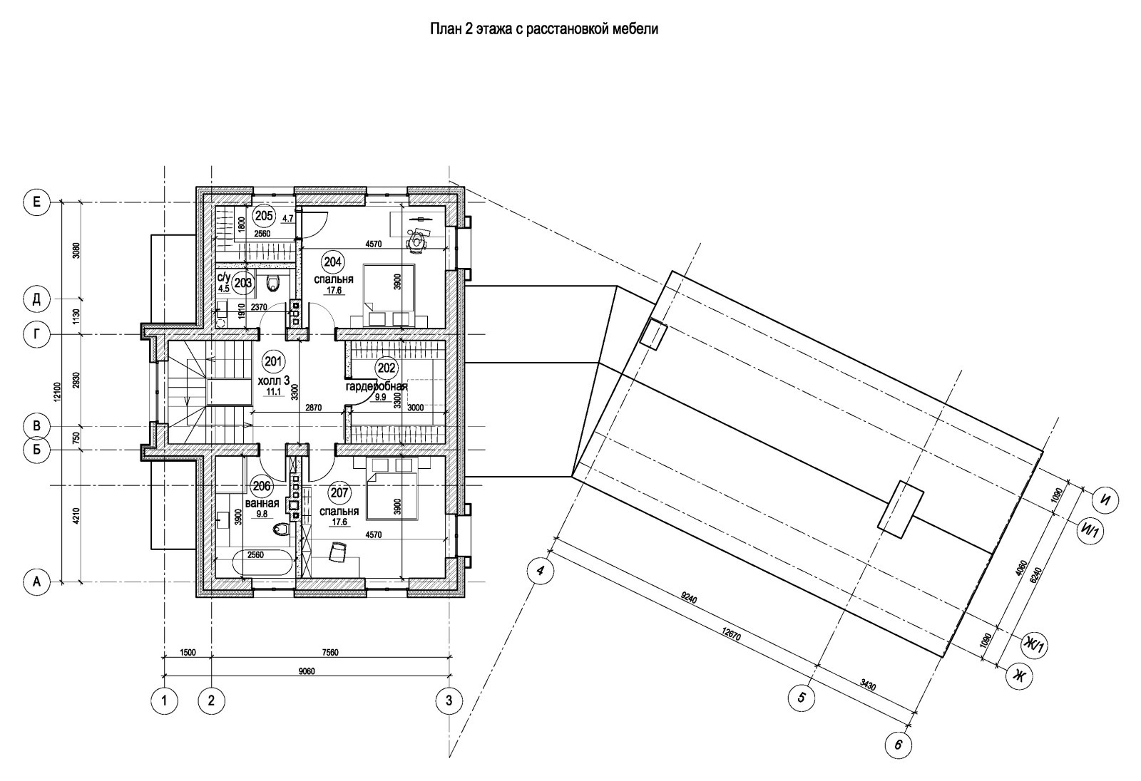
Проектирование индивидуальных жилых домов: разработка эскизных проектов, рабочих проектов, конструктивных разделов (разрабатывается специалистом инженером-конструктором).
Категории специализации
Архитекторы, Гардеробные и кладовые комнаты, Детские и пеленальные, Дизайнеры интерьера, Проектирование и строительство
Услуги
Архитектурное проектирование
План дома
Планировка пространства
Проект дома на заказ
Строительство мини-домов
Альбомы идей 1






