

ТЕРРИТОРИЯ
Архитекторы
Отзывы о: ТЕРРИТОРИЯ 0
Нет отзывов
Об эксперте
Об опыте
Архитектурное проектирование, Строительное проектирование, Дизайн интерьеров
Категории специализации
Архитекторы, Гардеробные и кладовые комнаты, Детские и пеленальные, Дизайнеры интерьера, Проектирование и строительство, Ремонт и отделка квартир и домов
Ценовой сегмент: ₽
Услуги
Архитектурное проектирование
Архитектурные чертежи
Архитектурный дизайн
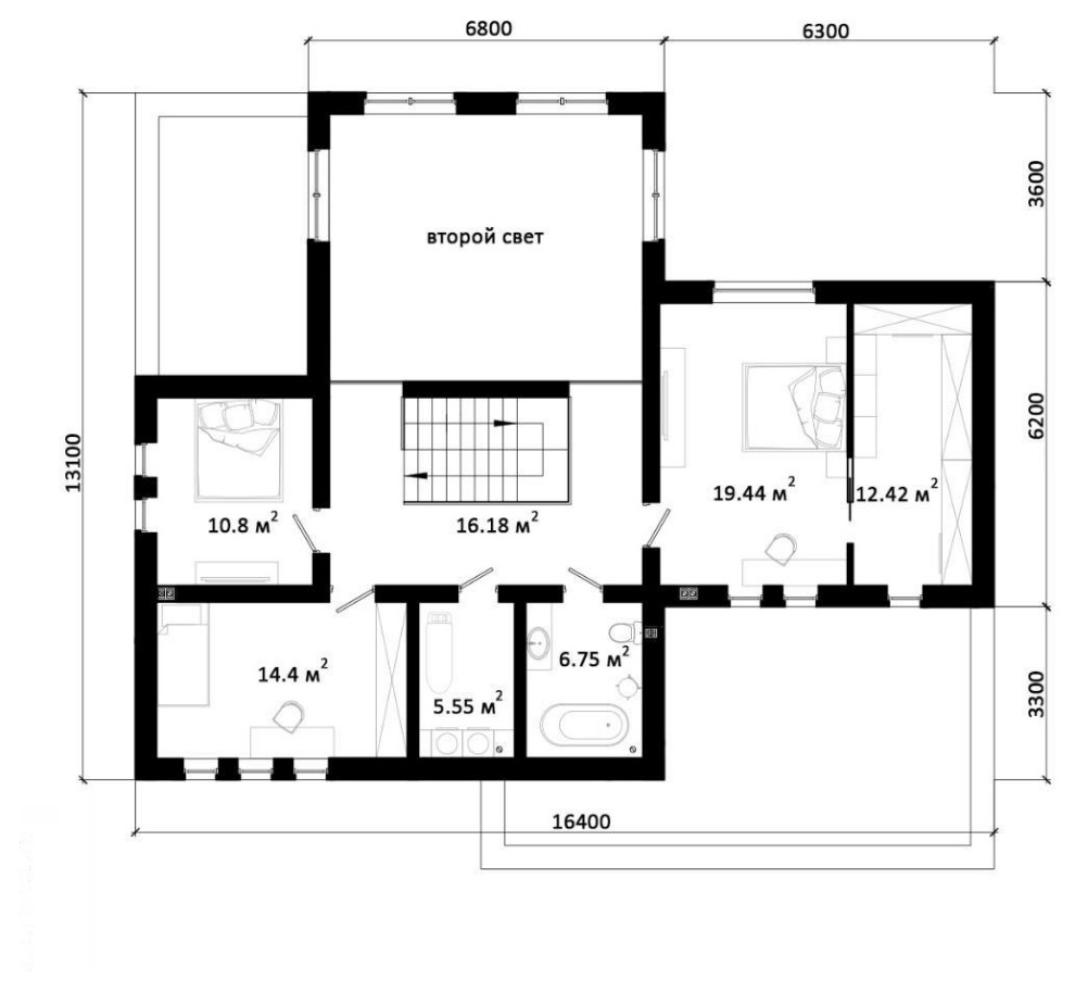
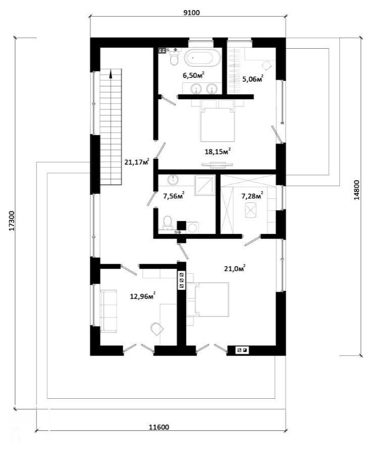
План дома
Планировка пространства
Проект дома на заказ
Строительство дома
Альбомы идей 3






