
House boat
28

Дизайнеры интерьера

House boat
28

Квартира для семьи с двумя детьми
28
г. Санкт-Петербург

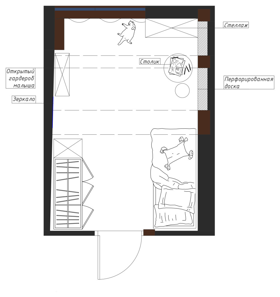
Детская комната для девочки
14

1к.кв. для аренды
18
г. Санкт-Петербург

Детская для двух девочек
0
г. Санкт-Петербург

Ресторан-бакалея (г. Кронштадт)
3
г. Санкт-Петербург

Коворкинг для родителей в Кудрово
0
г. Санкт-Петербург

3 ккв. на Университетском пр. (Москва)
7
г. Санкт-Петербург
Нет отзывов
Рада приветствовать! Меня зовут Наталия, я имею высшее профильное образование и опыт работы в индустрии более 1,5 лет. Я занимаюсь проектами «под ключ», декорированием готовых интерьеров и разработкой концепций, планировок, закупками и логистикой. Для меня важно вас услышать, раскрыть потребности и воплотить ваши желания в гармоничном и удобном пространстве, которое возможно реализовать. Могу присоединиться к проекту на любой стадии. Заключаю договор. Буду рада сотрудничеству.
Ценовой сегмент: ₽₽
