
Реализация проекта двухкомнатной квартиры ЖК Ильинский 3 г. Саратов
19
г. Саратов

Дизайнеры интерьера

Реализация проекта двухкомнатной квартиры ЖК Ильинский 3 г. Саратов
19
г. Саратов

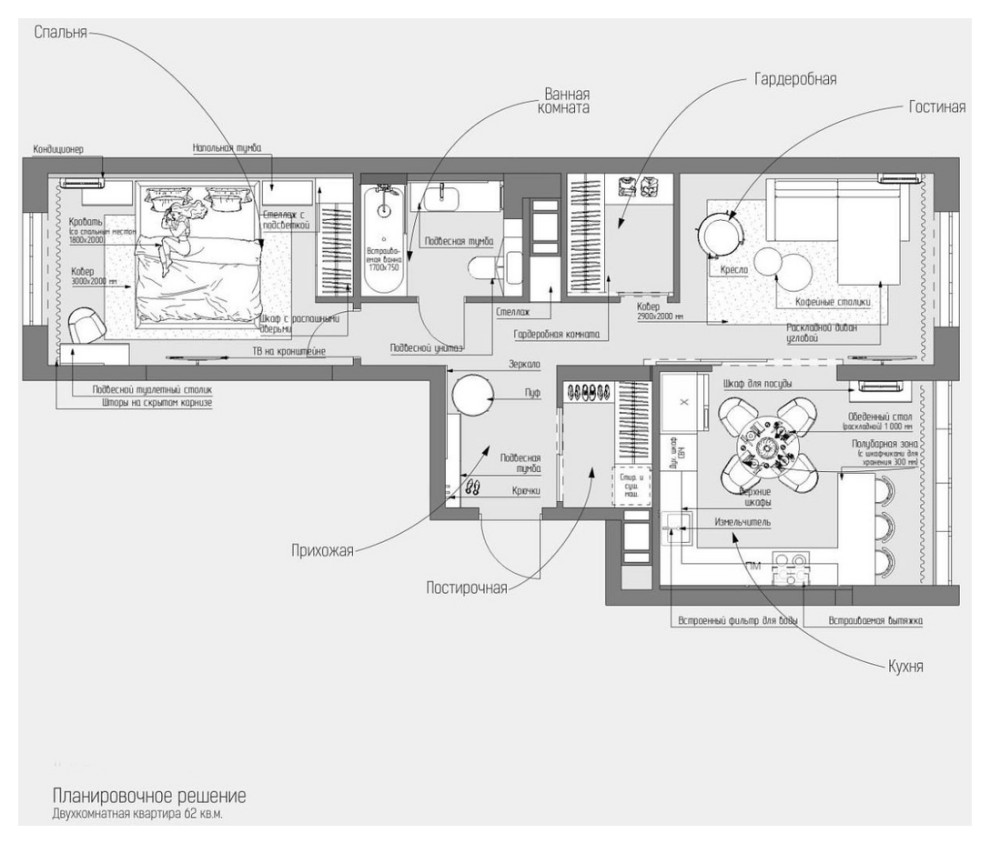
Проект двухкомнатной квартиры #ilyinsky_3/2
52
г. Саратов

Реализация проекта трехкомнатной квартиры ЖК Перекресток г. Саратов
31
г. Саратов

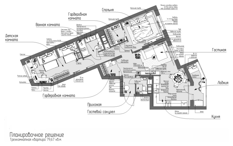
Проект трехкомнатной квартиры #ilyinsky
69
г. Саратов

Проект частного дома #dubrovka_house
87
г. Саратов

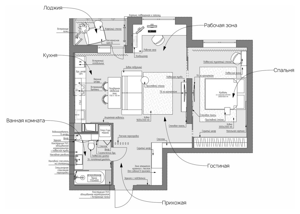
Проект двухкомнатной квартиры #urban_inspiration
34
г. Саратов

Проект апартаментов г. Москва #apartments_bukinist
16
г. Москва
Нет отзывов
"Интерьер начинается с Вас..." - Растрепина Марина и Бобрышева Юлия - дипломированные специалисты в сфере дизайна архитектурной среды. Уверены, что интерьер - отражение его жителей. Каждый человек должен гармонично существовать в своём пространстве. Поэтому главная наша задача - создание интерьера, отражающего Вашу индивидуальность. Two B Design готовы помочь пройти этот тернистый путь к дому Вашей мечты!
Ценовой сегмент: ₽₽
