

Анастасия Шабаева
Дизайнеры интерьера



4
г. Воронеж

3
г. Москва

12
г. Симферополь

Отзывы о: Анастасия Шабаева 6
5
6 отзывов
Стоимость
5.0
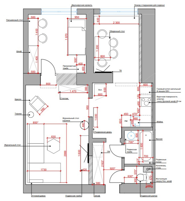
Заказывали у Анастасии дизайн проект части квартиры (вторичное жилье) в стиле минимализм с элементами сканди для семьи из 4 человек с двумя детьми. Обратились к Анастасии на основании имеющихся отзывов и результат оправдал наши пожелания. Нам нужно было организовать рабочее и спальное место, а также места хранения в крошечной детской, функциональную кухню со столовой, уютную гостинную и раздельный санузел. Для нас было важно максимально скрытое хранение, простота в уборке, осутствие ярких цветов и сложных конструкций. Все наши пожелания были услышаны и учтены, Анастасия всегда была на связи и можно было обсудить любой вопрос. Особенно порадовала цена и скорость работ. Очень довольны результатом, все именно так как и хотели. Однозначно рекомендую!
15/Август/2020
Добрый день! Хочу рассказать немного проекте Анастасии в которому салон декоративных материалов Oikos участвовал как исполнитель работ по нанесению декоративной краски Ottocento Antico Velluto (цвета прихожей AN 991 и основной цвет AN 997 по колеровочной карте в каталоге OIKOS). . . Как со специалистом работать понравилось, так как Анастасия старается предусмотреть наперед все нюансы, которые могут возникнуть при работе с данным материалом. Без спешки... как бы собирая отдельные пазлы интерьера в одно целое. Когда настолько все продумывается и согласовывается "на берегу" (или учитываются каке-то наши инструкции), то проект выполняется быстро, качественно с готовностью осветить для заказчика все этапы работ -24/7. В дальнейшем я с удовольствием буду сотрудничать с данным дизайнером, и регулировать все процессы начиная от изготовления образца, до финальной сдачи объекта.
18/Февраль/2020
Сотрудничество с Анастасией - это всегда профессионализм, индивидуальный подход и уверенность в отличном результате! . . Анастасия создает поистине шедевры как в классическом стиле, так и в любом из современных направлений. При этом учитывает все пожелания заказчика, уделяя особое внимание качеству и функциональности материалов. В результате каждый клиент получает индивидуальный дизайн, который будет радовать и вдохновлять долгие годы !
14/Январь/2020
Добрый день всем кому интересен наш отзыв. Наша компания @evroparquet, салоны дверей и паркета в Крыму, уже больше пяти лет тесно сотрудничает с Шабаевой Анастасией. Мы с Анастасией реализовали множество объектов, где она показала себя как великолепный профессионал с отличным подходом к клиенту. Все дизайн проекты согласовывались с успехом до начала каких либо работ на объекте и закрывались практически без изменений в процессе. С Анастасией просто и понятно работать как её клиентам, так нам, партнёрам. Простота обусловлена высоким профессионализмом Шабаевой Анастасии, и чётким пониманием конечного результата. Мы уверены, Шабаева Анастасия прекрасно справиться с любой задачей поставленной Клиентом.
13/Январь/2020
Анастасия, спасибо за проделанную работу, было приятно с Вами поработать, помогли подобрать цвета и материалы, всегда были на связи. Все было выполнено в короткий срок, что было для нас очень важно. В случае необходимости буду обращаться к Вам еще!
20/Ноябрь/2019
Об эксперте
Об опыте
Разрабатываю дизайн проекты квартир, домов и ресторанов. Делаю свою работу ответственно и с душой. Работаю удаленно и по месту.
Категории специализации
Архитекторы, Гардеробные и кладовые комнаты, Декораторы и стилисты интерьера, Детские и пеленальные, Дизайнеры интерьера, Корпусная мебель, Освещение, Проектирование и строительство, Производство и установка кухонь, Ремонт и отделка квартир и домов
Ценовой сегмент: ₽₽
Услуги
Визуализация интерьера
Дизайн ванной комнаты
Дизайн гардеробной/кладовой
Дизайн гостиной
Дизайн детской спальни
Дизайн для людей с ограниченной мобильностью
Дизайн игровой комнаты
Дизайн интерьера
Дизайн комнаты для малыша
Дизайн кухни
Дизайн освещения
Дизайн прихожей
Дизайн спальни
Консультация по цвету
План дома
План этажа
Планировка пространства
Подбор мебели
Предпродажная подготовка квартиры
Проект гардеробной
Украшение дома
Экодизайн
Элитный ремонт
Альбомы идей 3


