
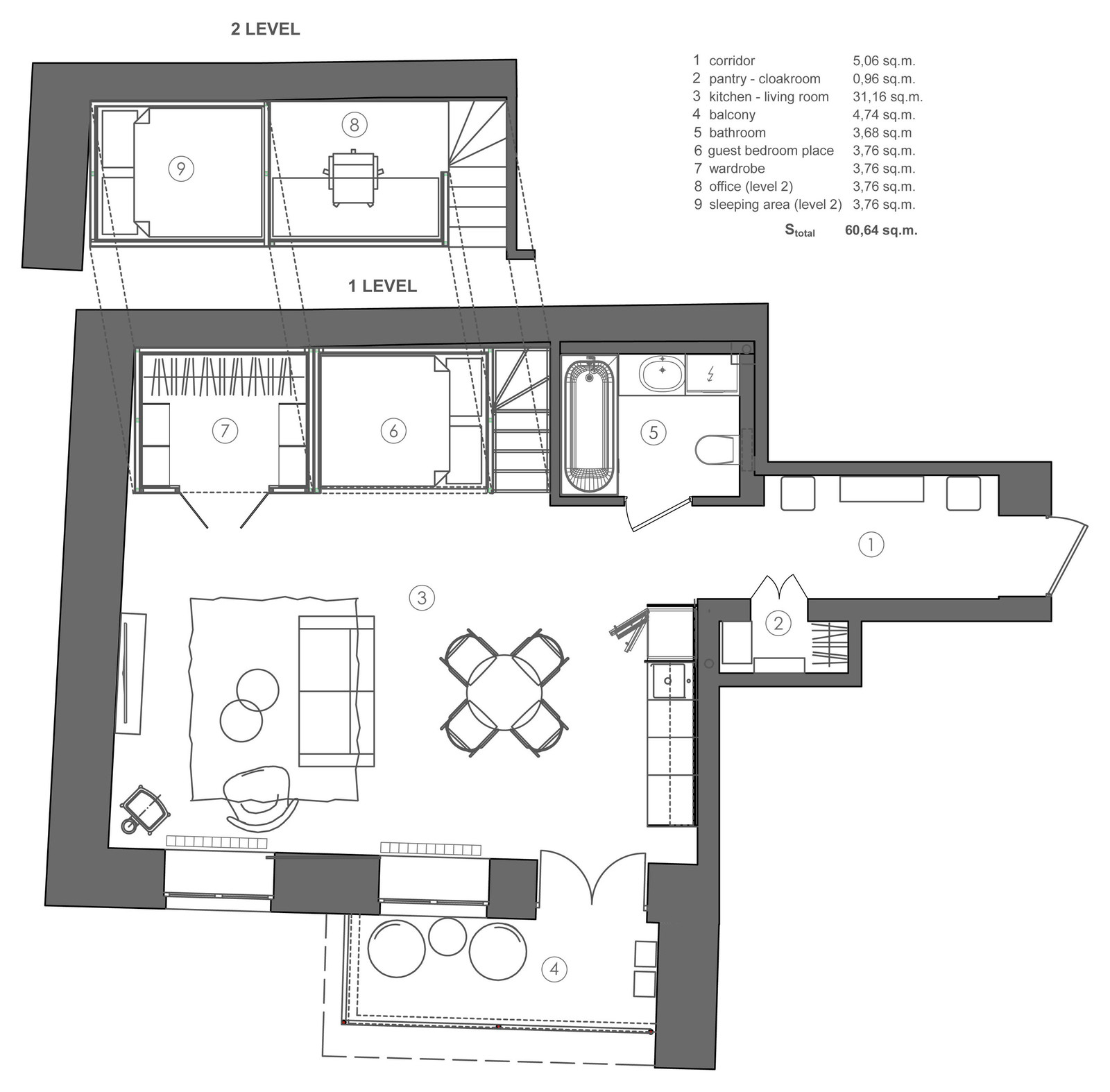
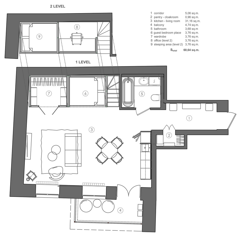
Villa M
41

Архитекторы
5
4 отзыва
15/Июнь/2020
26/Март/2016
26/Март/2016
25/Март/2016
На сегодняшний день на счету Martin's проектирование не только квартир и частных домов в разных архитектурных стилях, но и офисных, торговых помещений, проекты гостиниц и др. крупных строений. В нашей команде - лучшие дизайнеры интерьера, проектировщики, архитекторы и инженеры, способные воплотить в реальность самые смелые Ваши идеи в строго оговоренные сроки!
Ценовой сегмент: ₽₽₽₽
