
Детская комната для Дарьи 6 лет
0
г. Люберцы

Детские и пеленальные

Детская комната для Дарьи 6 лет
0
г. Люберцы

Детская комната для Лизы 2 года
5
г. Москва

Комната Дмитрия 7 лет и Анны 5 лет
4
г. Москва

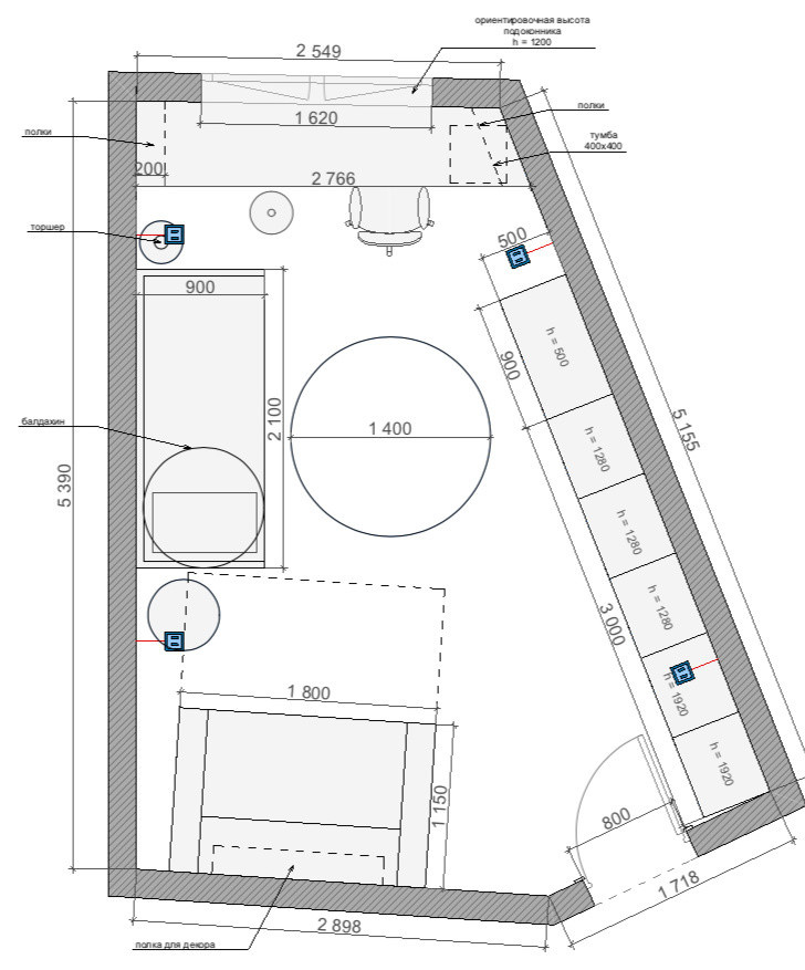
Комната для Дарьи 17 лет
6
г. Москва

Детская комната Матвея 10 лет
3

Детская комната для Луки (4 года)
3

Детская комната Марии (7 лет) и Людмилы (3 года)
5

Комната для Анастасии 15 лет
4
г. Москва

Детская комнат для Ксюши (7 лет) и Кирилла (4 лет)
5
Нет отзывов
Мы создаем не просто красивые детские комнаты, а целую атмосферу для роста и полноценного развитию ребенка в команде с психологами! Детская комната, это целая наука! Помимо базовых вещей, таких как безопасность мебели, светильников, дверей, окон, удобства, красоты и наличия всех необходимых зон в комнате: зоны сна, игр, учебы и хранения. Есть еще и психологический аспект. Ведь комната, это прежде всего пространство, для всестороннего развития ребенка: физического, интеллектуального и эмоционально-волевого. И в целом детство- это фундамент для его развития и дальнейшей жизни, каким он будет, будет зависеть от нас! И то, что мы сейчас вкладываем в детей, крайне важно. Поскольку мы создаем комнату именно для ребенка, то крайне важно учитывать возраст ребенка, пол, особенности развития, в том числе психологическое, пол, здоровье и конечно же его интересы! Лишь тогда комната станет инструментом для развития.
Ценовой сегмент: ₽₽
