
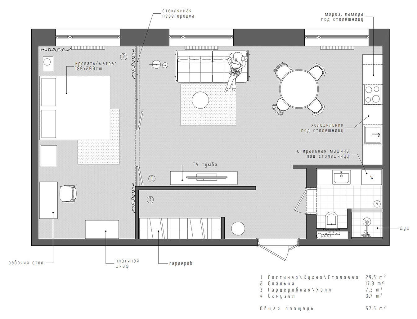
Скандинавский минимализм
16
г. Санкт-Петербург

Ремонт и отделка квартир и домов
4
2 отзыва
Стоимость
3.0
19/Сентябрь/2017
07/Апрель/2017
Производим ремонт и отделку высокого качества по дизайн-проектам и индивидуальным проектам клиентов.
Ценовой сегмент: ₽₽₽₽
