
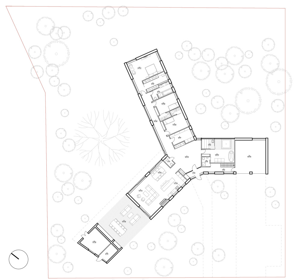
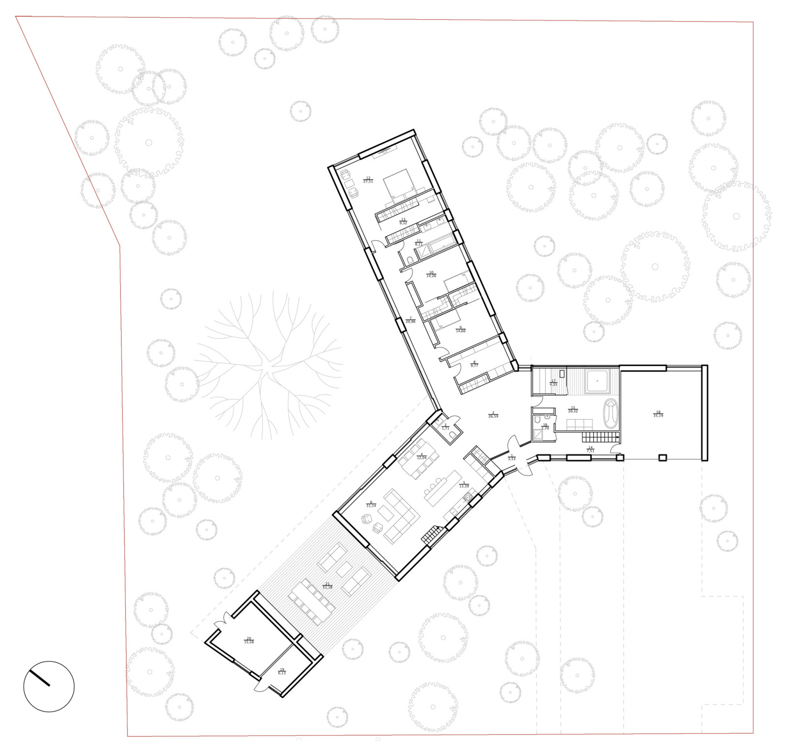
Параметрический костер
2

Архитекторы
5
1 отзыв
09/Февраль/2020
Студия EFAS основана в 2014 году. Мы проектируем и воплощаем в жизнь современные жилые дома, разрабатываем для них правильный дизайн интерьеров. Наши принципы: 1. Проектирование основано на логике. Это не придумывание дома или рисование картинок, а поиск наилучшего решения, основанного на: естественных ограничениях — особенностях участка, строительных нормах и правилах, технических условиях; Личности клиента — образе жизни, привычках, стилевых предпочтениях; Опыте архитектора. 2. Функциональное зонирование — важнейшая часть проекта. Мы считаем, что дом — это материальная оболочка для процессов, которые будут в нем проходить. При таком подходе в проекте нет случайных деталей. Каждый элемент дома решает конкретную задачу. 3. Индивидуальность — обязательная характеристика дома. Каждый дом — это воплощение образа жизни хозяев. Поэтому он уникален так же как ваша личность, ваша семья, ваши любимые занятия. 4. Общение с клиентом — залог отличной архитектуры. Только построение открытого доверительного диалога позволяет выявить и понять потребности и пристрастия клиента. Узнать его мечты и создать проект, воплощающий их в реальность. 5. Стандарты качества на всех этапах проектирования. Сдать объект надлежащего качества вовремя — дело чести и репутации для нас. В работе стараемся предложить лучший способ достижения поставленной цели, благодаря рациональному проектированию сократить расходы на реализацию. 6. Комплексный подход для успешной реализации. В проекте архитектура, ландшафт и дизайн интерьера гармонично дополняют друг друга, создавая единый ансамбль. При строительстве каждый элемент проекта, от фундамента до дверной ручки, — находится под нашим пристальным вниманием Компания EFAS – ООО «Эффективные архитектурные решения» является членом СРО «Региональный альянс проектировщиков» и имеет допуск к проектированию объектов высшей степени сложности, уникальных объектов, а также выполнению функций Генерального Проектировщика.
Ценовой сегмент: ₽₽₽₽
