
Гостиничный комплекс в Крыму. Реконструкция
8

Архитекторы

Гостиничный комплекс в Крыму. Реконструкция
8

Арт-объекты
17

Дом в восточной Индии
1

Оздоровительный центр в Индии
0

TOVP. Храм-планитарий. Индия штат Западная Бенгалия. Маяпур.
10

Многофункциональный комплекс
6
г. Москва

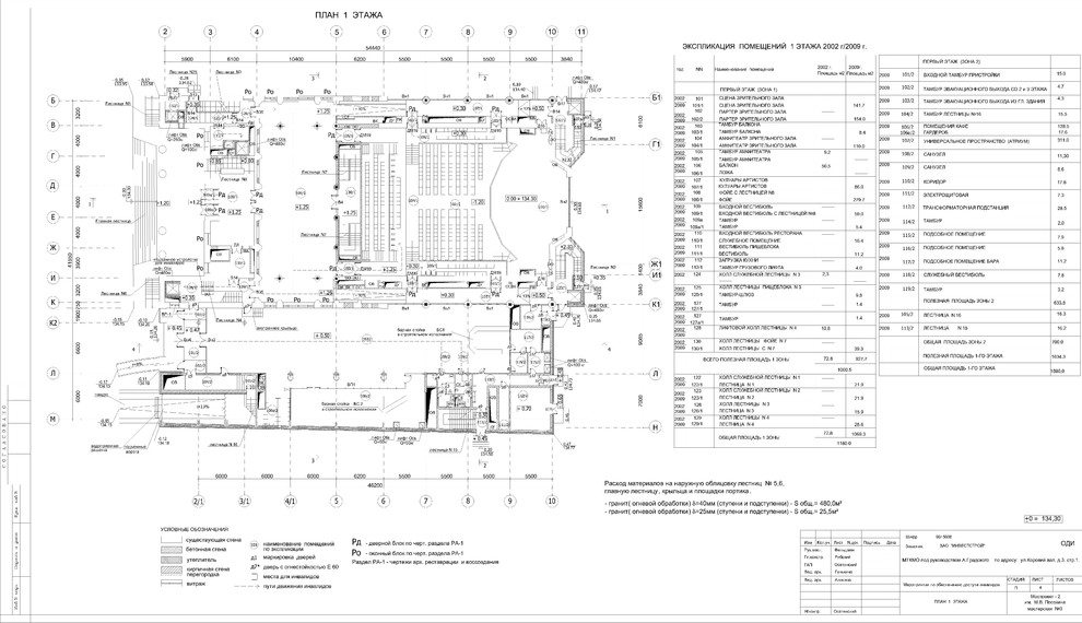
Гостиница Онега-Палас. Петрозаводск
0

Чертежи. Проекты.
22

Вестибюль. Ресторан. Арбат. Москва.
14
Нет отзывов
Архитектура, Градостроительство: Опыт в программах : Autodesk AutoCAD, 3ds Max, Vray Rendering, Adobe Photoshop. Опыт работы архитектором 10 лет
Ценовой сегмент: ₽₽
