

Александра Безпалова
Архитекторы
Отзывы о: Александра Безпалова 0
Нет отзывов
Об эксперте
Об опыте
Имею законченное высшее архитектурное образование. Это наложило определенный отпечаток на все мои виды деятельности. Архитектурное образование дисциплинирует, учит работать последовательно и системно; помогает определенным образом чувствовать контекст и осмыслять пространственные связи. Занимаюсь разработкой проектов под ключ, архитектурой и дизайном.
Категории специализации
Архитекторы, Беседки и веранды, Гардеробные и кладовые комнаты, Детские и пеленальные, Дизайнеры интерьера, Проектирование и строительство, Ремонт и отделка квартир и домов
Ценовой сегмент: ₽₽
Услуги
Архитектурное проектирование
Архитектурные чертежи
Архитектурный дизайн
Дизайн и строительство застекленной террасы
Дизайн интерьера
Дома из клееного бруса
Домик у бассейна под ключ
Консультация дизайнера
Модульные пристройки
Надстройка мансардного этажа
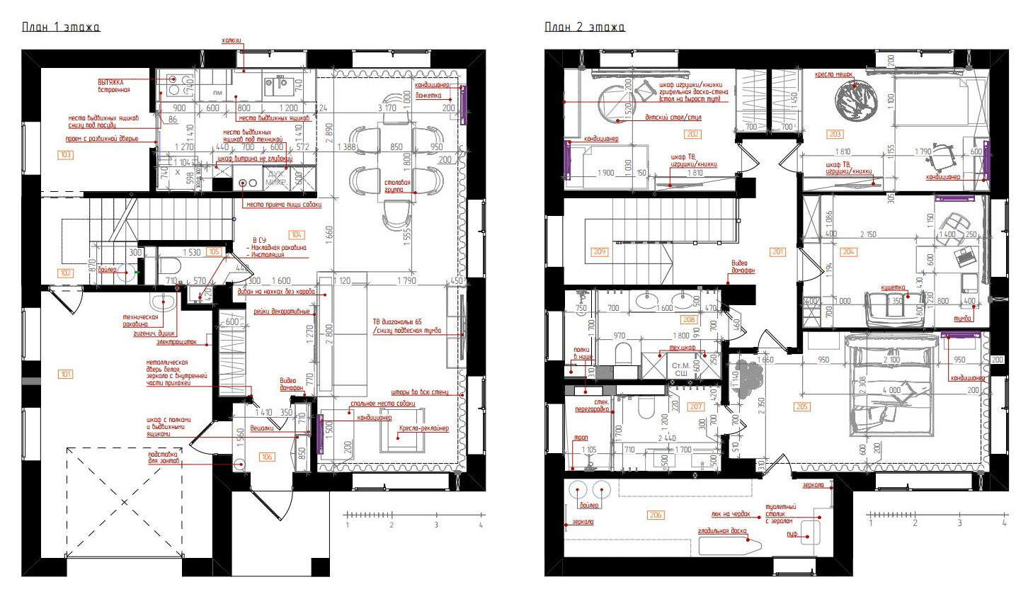
План дома
План этажа
Планировка пространства
Пристройки к дому
Проект дома на заказ
Реставрация домов и квартир
Строительство деревянных домов
Строительство дома
Строительство мини-домов
Устройство террасы на крыше
Элитный ремонт





