
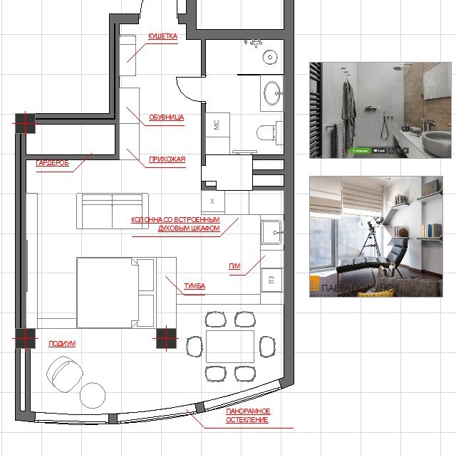
проект квартиры "Холостяк"
5

Архитекторы
Нет отзывов
В начале своего пути,получая образование у лучших мастеров, я искренне считала, что предназначение дизайнера - это воплощение искусства в проекте для конкретного человека. Я ошибалась! Проработав много проектов, пришла к истине: Человек не предназначен для осмысления концепции творца , пространство должно работать на человека! Миссия архитектора-дизайнера,используя технологии и здравый креатив создать безупречное пространство ,которое будет работать на вас!
Ценовой сегмент: ₽₽
