

Игорь
Проектирование и строительство
Отзывы о: Игорь 3
5
3 отзыва
Стоимость
4.5
Дорогие друзья! Хочу поделится опытом сотрудничества с инженером Игорем К. Нужен был проект для квартиры 72 м2, озадачился поиском на нашем форуме ЖК Новая Звезда. Выслал все имеющиеся материалы по квартире, в течении 3 недель проект был готов, потребовалось доп.время для согласования текущих вопросов по разводке, проект был выполнен на высоком профессиональном уровне. Стоит заметить гибкость исполнителя и основательный подход к исполнению задачи. Рекомендую
27/Октябрь/2017
Заказали проект для нашей «трешки» в новостройке. Решили заранее всё продумать, чтобы потом не было «переделок» и споров с электриками по объёмам и стоимости работ. Проект нам сделали достаточно быстро. Все наши пожелания были учтены. На все вопросы подробно ответили. В итоге мы получили план с разводкой кабелей по квартире, схему щитка и список материалов. У электриков при монтаже вопросов не возникло - сделали все как в проекте. Всё работает исправно. Спасибо!
03/Октябрь/2017
Проект электроснабжения квартиры был выполнен очень быстро. В ходе работы были внесены необходимые изменения и корректировки, с учетом правил безопасности (не смотря на мои пожелания сделать как "нельзя, но хотелось бы"). Спасибо за отличную работу.
09/Август/2017
Об эксперте
Об опыте
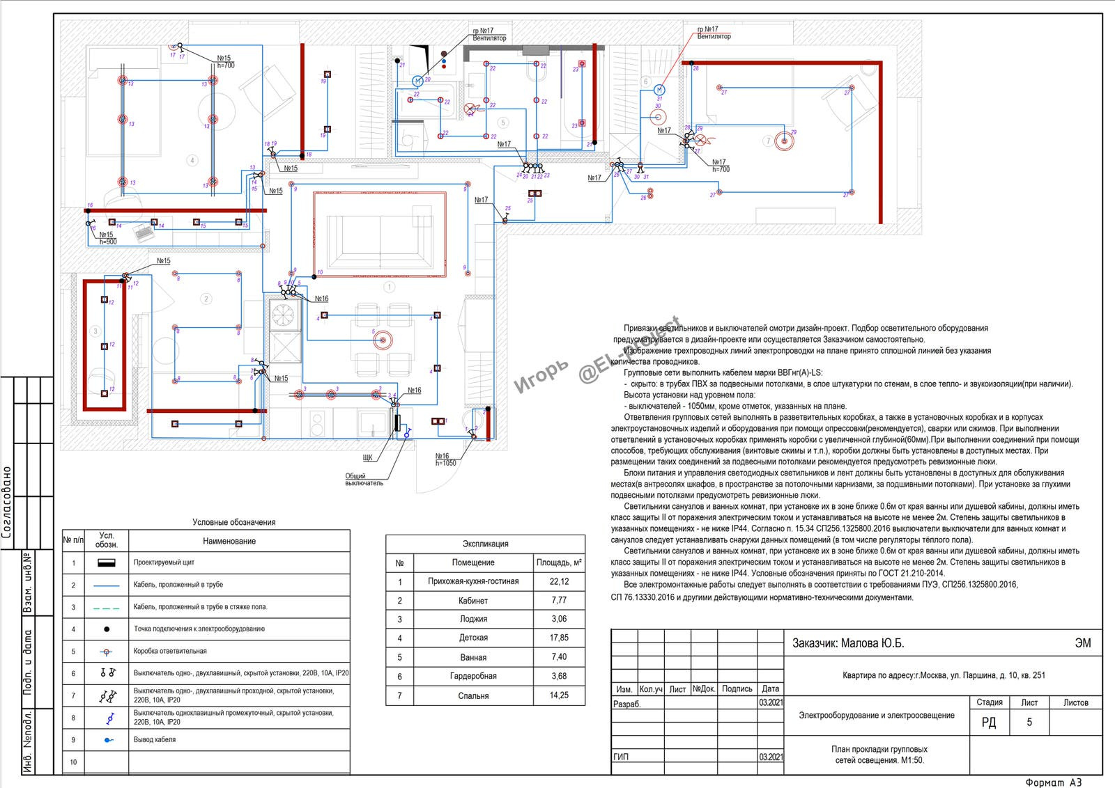
Разрабатываю проекты электроснабжения, электрооборудования и электроосвещения жилых домов, квартир, офисов, магазинов и др. Молниезащита и заземление.
Категории специализации
Архитекторы, Проектирование и строительство, Ремонт и отделка квартир и домов
Ценовой сегмент: ₽
Услуги
Строительство дома
Чертеж на заказ
Альбомы идей 4








