

Архитектурное Бюро А4
Архитекторы
Отзывы о: Архитектурное Бюро А4 0
Нет отзывов
Об эксперте
Об опыте
Архитектурное проектирование и дизайн. Загородное жилье, квартиры, общественные здания и интерьеры. Ландшафтный дизайн, планировка и озеленение участка. Малые архитектурные формы. Реализация объектов, ведение авторского надзора, консультации.
Категории специализации
Архитекторы, Бани и сауны, Беседки и веранды, Гардеробные и кладовые комнаты, Декораторы и стилисты интерьера, Детские и пеленальные, Дизайнеры интерьера, Проектирование и строительство, Производство и установка кухонь, Ремонт и отделка квартир и домов, Специалисты по ремонту кухни
Ценовой сегмент: ₽₽
Услуги
Архитектурное проектирование
Архитектурные чертежи
Архитектурный дизайн
Визуализация интерьера
Дизайн ванной комнаты
Дизайн гостиной
Дизайн кухни
Домик у бассейна под ключ
Консультация дизайнера
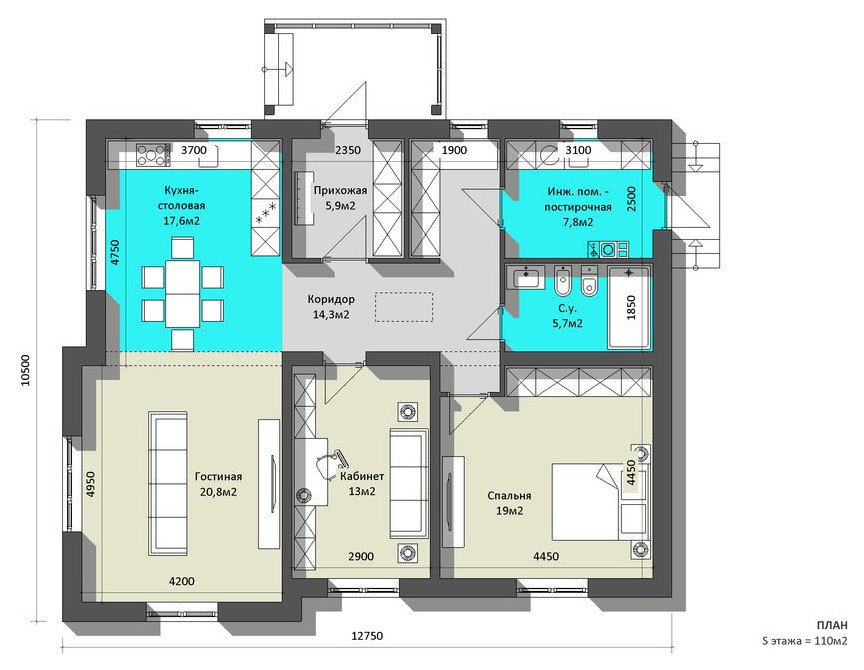
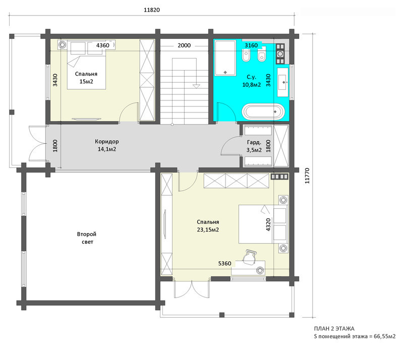
План дома
План этажа
Планировка пространства
Подготовка участка
Пристройки к дому
Проект дома на заказ
Проектирование конструкций
Ремонт квартир и домов
Ремонт квартиры
Ремонт кухни
Ремонт подвала
Реставрация домов и квартир
Строительство бань под ключ
Строительство домов из оцилиндрованного бревна
Услуги частного прораба
Устройство террасы на крыше
Чертеж на заказ
Экодизайн
Экологичное зеленое строительство
Энергосберегающий дом
Альбомы идей 1



