

Aleksandr Davydov
Архитекторы
Отзывы о: Aleksandr Davydov 0
Нет отзывов
Об эксперте
Об опыте
Архитектор, который смотрит на мир широко. Всегда учусь чему-то новому. В проекте учитываю ваши пожелания, но честно говорю, где могут быть сложности. Проект одноэтажного жилого дома с тремя спальнями. Проект коттеджа в стиле шале. Проект дачного дома. Дизайн интерьера. Дизайн комнаты.
Категории специализации
Архитекторы, Гардеробные и кладовые комнаты, Детские и пеленальные, Дизайнеры интерьера, Проектирование и строительство
Ценовой сегмент: ₽
Услуги
Архитектурное проектирование
Архитектурные чертежи
Визуализация интерьера
Дизайн ванной комнаты
Дизайн интерьера
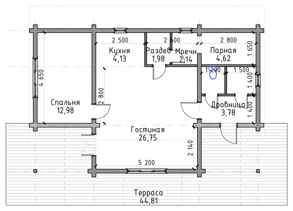
План дома
План этажа
Планировка пространства
Подготовка участка
Пристройки к дому
Проект дома на заказ
Чертеж на заказ
Альбомы идей 1




