
Дизайнеры интерьера
5
·
10 отзывов
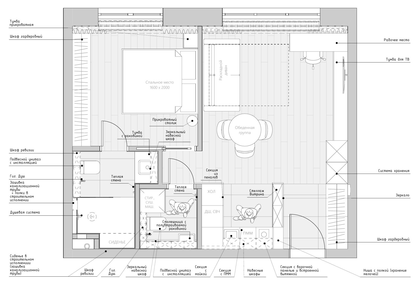
Другие фотографии в проекте
1 раз сохранено в статьи и альбомы идей:
Добавил(-а) в альбом: Ванная Марина от Андрея
Вопросы к фото 0
Задайте вопрос
Вам ответят эксперты. Пришлем уведомление, когда вам ответят
Похожие фотографии

Реализованный интерьер ЖК Макаровский
Источник вдохновения для домашнего уюта: ванная комната в классическом стиле
Валентина Ивлева

Ботанический сад
Пример оригинального дизайна: ванная комната в современном стиле
Даша Мягкая

ЖК Волковский
Стильный дизайн: ванная комната в современном стиле - последний тренд
Мадина Богатырева

Ванная комната
На фото: маленькая ванная комната в современном стиле для на участке и в саду
Строй Сити

Лофт в сталинке
Источник вдохновения для домашнего уюта: маленькая ванная комната в стиле лофт с плоскими фасадами, фасадами цвета дерева среднего тона, душем в нише, бежевой плиткой, керамогранитной плиткой, бежевыми стенами, полом из керамогранита, душевой кабиной, накладной раковиной, столешницей из дерева, бежевым полом, душем с распашными дверями, коричневой столешницей, тумбой под одну раковину и напольной тумбой для на участке и в саду
Татьяна Никитина

Квартира в Z House
Пример оригинального дизайна: ванная комната в современном стиле
Filipp Filipovich

Пентхаус в ЖК "Сердце Каспия"
На фото: ванная комната в современном стиле
OVA Laboratory

Квартира с гардеробной для коллекции кроссовок
Пример оригинального дизайна: большая ванная комната в современном стиле с плоскими фасадами, серыми фасадами, полновстраиваемой ванной, душем в нише, инсталляцией, серой плиткой, керамогранитной плиткой, черными стенами, полом из керамогранита, душевой кабиной, накладной раковиной, столешницей из плитки, серым полом, душем с распашными дверями, серой столешницей, зеркалом с подсветкой, тумбой под одну раковину и подвесной тумбой
Александр и Ирина Кутенковы

Новая жизнь хрущевки
Свежая идея для дизайна: ванная комната в скандинавском стиле - отличное фото интерьера
Роман

Квартира в московской сталинке, 62 кв.м.
Стильный дизайн: ванная комната в современном стиле с зелеными стенами, душем в нише и душевой кабиной - последний тренд
Анна Зуева

Мансардная двухуровневая квартира в скандинавском стиле
Идея дизайна: ванная комната среднего размера в современном стиле с плоскими фасадами, темными деревянными фасадами, ванной в нише, угловым душем, серой плиткой, керамогранитной плиткой, серыми стенами, полом из керамогранита, душевой кабиной, накладной раковиной, столешницей из дерева, серым полом, коричневой столешницей, тумбой под одну раковину, подвесной тумбой и душем с распашными дверями
Ольга Иванова

Квартира на Малом
Стильный дизайн: главная ванная комната среднего размера в современном стиле с плоскими фасадами, фасадами цвета дерева среднего тона, ванной в нише, душем над ванной, инсталляцией, серой плиткой, керамогранитной плиткой, серыми стенами, полом из керамогранита, столешницей из дерева, серым полом, шторкой для ванной, тумбой под одну раковину, подвесной тумбой и настольной раковиной - последний тренд
Александр Сенчугов




