
Дизайнеры интерьера
0
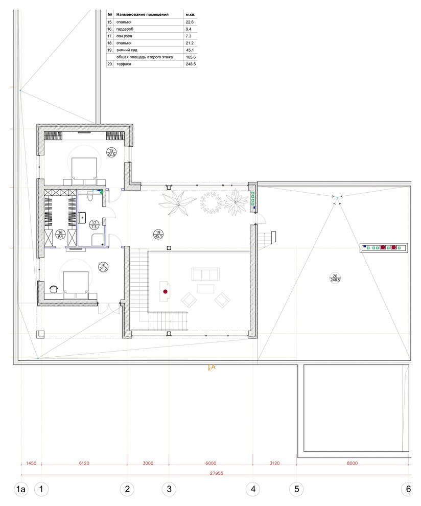
Жилой Дом S&R002
Проект индивидуального двухэтажного жилого дома в г. Саратов. Общая площадь 374.3 кв.м. . Проект разработан в современном стиле, с применением передовых материалов и методов строительства. . В концепцию дома заложена идея открытого пространства. . На первом этаже располагаются общественные и технические функции дома, на втором - спальни и зимний сад. С каждого этажа есть выход на крышу с открытыми террассами, которые открывают потрясающий вид на реку Волгу. .
Другие фотографии в проекте
Вопросы к фото 0
Задайте вопрос
Вам ответят эксперты. Пришлем уведомление, когда вам ответят




